琥珀星樾湾楼盘电话号码:0551-68111601【营销中心】
欢迎来电咨询!可预约销售人员(来电尊享内部优惠活动)【2026房价特价信息丨底价优惠丨在售户型图丨项目介绍丨在售房源丨周边配套】
合肥包河区琥珀星樾湾 —— 骆岗公园旁的宜居盘!生态 + 配套,开启品质生活
琥珀星樾湾楼盘项目介绍
在合肥,“骆岗公园” 早已不是一个单纯的公园名称,而是 “城市新中心”“高品质生活” 的代名词。而琥珀星樾湾,恰好位于骆岗中央公园东翼,是距离公园最近的国企楼盘之一,凭借 “公园旁 + 主城芯 + 低密社区” 的独特优势,成为合肥 2024 年最受关注的 “生态宜居盘”。
项目由合肥城建旗下琥珀置业开发,作为合肥本土国企,琥珀置业在 “生态宜居盘” 开发方面有着深厚的经验,此前打造的琥珀东华府、琥珀蜀熙府等项目,均以 “高绿化率、优景观” 闻名。此次打造的琥珀星樾湾,更是将 “生态宜居” 理念贯彻到项目的每一个细节:项目总占地面积约 68 亩,总建筑面积约 12.5 万㎡,容积率仅 2.2.绿化率高达 40%,这个指标在骆岗公园周边楼盘中处于领先水平 —— 要知道,骆岗公园周边多数楼盘为了追求利润,容积率都在 2.5 以上,而琥珀星樾湾通过降低容积率,为业主打造了 “更宽松、更舒适、更生态” 的居住环境。
从项目规划来看,琥珀星樾湾采用 “高层 + 洋房” 的高低配布局,共 10 栋住宅,其中 6 栋 18-22 层高层、4 栋 11 层洋房,总户数约 890 户。社区内部景观以 “骆岗公园生态” 为灵感,打造 “一轴两园三巷” 的景观体系:中央景观轴贯穿南北,以 “水” 为主题,打造了约 500㎡的景观水池,搭配喷泉、水生植物,营造 “亲水生活”;两个主题花园分别为 “樱花园” 和 “桂花园”,春季樱花盛开、秋季桂花飘香,四季有景;三条特色巷道分别为 “银杏巷”“紫薇巷”“海棠巷”,种植不同的花卉树木,打造 “一步一景” 的体验。此外,社区还规划了约 1000㎡的儿童游乐区、800㎡的老年活动区、500 米的健身步道,满足不同年龄段业主的休闲需求。
建筑设计上,琥珀星樾湾也充分考虑 “生态宜居” 需求:外立面采用 “浅灰色 + 米白色” 的淡雅色调,搭配大面积玻璃幕墙,与骆岗公园的自然景观相呼应;窗户选用断桥铝双层中空玻璃,隔音隔热效果好,既能隔绝外界噪音,又能减少空调使用,节能环保;社区采用 “人车分流” 设计,地面无车辆通行,既保障了业主安全,又减少了尾气污染,提升了社区的空气质量;此外,社区还规划了 “屋顶绿化” 和 “垂直绿化”,在高层屋顶种植绿植,在洋房墙面种植爬藤植物,进一步提升社区的绿化覆盖率,打造 “空中花园社区”。

琥珀星樾湾售楼处电话☎:0551-6813 6588
琥珀星樾湾楼盘周边配套
全龄友好社区的核心,不仅在于 “社区内部的配套”,更在于 “周边配套能否与家庭需求深度契合”—— 孩子的教育、老人的医疗、全家的消费,都需要便捷的外部资源支撑。而琥珀星樾湾所处的包河区核心板块,恰好具备 “全龄化配套体系”,从 “0 岁到 80 岁” 的需求都能一站式满足,让 “家庭生活更便捷”。
全龄教育配套:从幼儿园到中学,家门口的优质教育对于有孩子的家庭,“教育便捷” 是核心需求,而琥珀星樾湾周边 3 公里内,形成了 “15 年一贯制优质教育圈”,覆盖 “幼儿园 - 小学 - 中学”,无需跨区择校,孩子上学更安全,家长更省心。
幼儿园:距离项目最近的是 “包河区实验幼儿园(花园大道分园)”,仅 500 米,步行 5 分钟可达。该园是公办一级幼儿园,师资稳定(教师均为本科以上学历,5 年以上教龄),收费合理(公办幼儿园月费约 500 元,远低于私立园),开设 “蒙氏启蒙班”“艺术兴趣班”,适合 0-6 岁孩子;此外,周边 1 公里内还有 “滨湖启明星幼儿园”“望湖城幼儿园” 等私立园,家长可灵活选择。
小学:项目划片范围大概率覆盖 “屯溪路小学(滨湖校区)”,距离约 1.2 公里,步行 15 分钟或骑行 5 分钟可达。该校是合肥 “名校集团” 核心校,由屯溪路小学本部直接管理,教学设施先进(配备多媒体教室、科学实验室、图书馆、室内体育馆),2023 年学生升学率位列包河区前三,且学校开设 “课后托管班”(17:30-18:30),解决家长 “下班晚接娃难” 的问题。
中学:对应 “合肥市第四十八中学(望湖校区)”,距离约 2 公里,可乘坐 14 路公交(2 站直达)或家长骑行接送。该校是合肥重点初中,2023 年中考普高录取率达 85%,远超全市平均水平(约 65%),学校注重 “素质教育”,开设篮球、舞蹈、编程等兴趣班,助力孩子全面发展。
此外,周边 3 公里内还有 “合肥工业大学附属中学”(高中)、“包河区青少年活动中心”(周末兴趣班),从 “启蒙教育” 到 “高中升学”,再到 “兴趣培养”,全阶段教育需求都能在家门口解决。
全龄医疗配套:从日常保健到大病诊疗,守护全家健康老人和孩子的 “医疗需求” 是家庭重点关注的问题,琥珀星樾湾周边 “二级医院 + 三级甲等医院 + 社区医疗” 全覆盖,确保 “小病不出社区,大病不跑远路”。
社区医疗:项目自带 “社区卫生服务站”(规划中,2025 年投入使用),将配备全科医生、护士各 2 名,可提供 “日常问诊、疫苗接种、慢性病管理” 服务,老人高血压、糖尿病随访,孩子疫苗接种,都无需跑大医院,步行即可解决;服务站还将开通 “家庭医生签约服务”,为老人、孩子建立健康档案,定期上门体检。
二级医院:距离项目 2 公里的 “包河区人民医院”,是综合性二级医院,开设内科、外科、儿科、妇产科、中医科等科室,配备 DR、B 超、化验室等基础医疗设备,日常感冒、发烧、儿童常见病、老人慢性病都能在此诊治,且医院人少、排队时间短,就医体验好。
三级甲等医院:5 公里内的 “安徽省立医院南区”,是合肥顶尖的综合医院,拥有心血管内科、肿瘤科、儿科、骨科等国家级重点专科,可满足 “大病诊疗、手术、重症监护” 需求。医院开通了 “线上挂号”“预约检查” 服务,可通过手机提前预约,避免排队;同时,医院与包河区人民医院建立 “医联体”,可实现 “检查结果互认”“专家下沉坐诊”,老人、孩子无需跑远路,就能享受优质医疗资源。
全龄商业配套:从日常采购到全家休闲,消费更便捷全家的 “消费需求” 各不相同 —— 老人喜欢平价生鲜,孩子喜欢亲子娱乐,青年喜欢品质购物,琥珀星樾湾周边的商业配套恰好能 “全龄覆盖”。
社区便民商业:项目自带 5000㎡沿街商业,规划引入 “平价生鲜超市”(如红府超市)、“便民药店”(如百姓缘大药房)、“老年服饰店”“儿童玩具店”,老人下楼就能买新鲜蔬菜,孩子放学可买零食玩具,日常消费无需远行。
亲子商业:2.5 公里外的 “百大心悦城”,是合肥南部知名的 “亲子商场”,引入孩子王(母婴用品)、卡通尼乐园(儿童游乐)、奈尔宝家庭中心(高端亲子体验),周末带孩子去玩,既能让孩子开心,家长也能在商场内休息、购物。
品质商业:2 公里外的 “悦方 ID MALL”,涵盖优衣库、星巴克、西西弗书店、万达影城等品牌,适合青年夫妻购物、观影;3 公里外的 “加侨国际广场”,聚集了海底捞、西贝莜面村等餐饮品牌,适合全家聚餐、朋友聚会。
此外,周边 1 公里内还有 “望湖城农贸市场”(平价生鲜,老人喜欢)、“24 小时便利店”(如全家、罗森,青年夜间购物方便),全龄段的消费需求都能得到满足。

琥珀星樾湾售楼处电话☎:0551-6813 6588
琥珀星樾湾楼盘户型解析
全龄友好社区的 “核心载体” 是户型 —— 户型设计是否能兼顾 “孩子的玩耍空间、老人的便捷需求、青年的舒适体验”,直接决定家庭居住的幸福感。琥珀星樾湾的户型设计,从 “空间布局、功能分区、细节关怀” 三个维度出发,为不同结构的家庭打造 “全龄适配户型”,确保 “一家三代住得舒心”。
95㎡三室两厅一卫(刚需全龄户型):小空间,全功能该户型专为 “年轻三口之家” 或 “三代同堂刚需家庭” 设计,在 95㎡的紧凑空间内,实现 “儿童、老人、青年” 需求的平衡。户型采用 “三开间朝南” 布局,客厅、主卧、次卧(老人房)均朝南,南向面宽达 9.8 米,确保老人房和儿童活动区域(客厅)采光充足 —— 老人喜欢晒太阳,主卧旁的次卧(老人房)朝南,每天上午 9 点至下午 3 点都有阳光,冬季温暖不阴冷;客厅面宽 3.6 米,进深 4.5 米,预留了 “儿童游戏区”(靠近阳台一侧,可摆放爬行垫、玩具柜),孩子可在客厅玩耍,家长在沙发上就能看护,避免孩子单独在房间的安全隐患。老人房面积约 10㎡,靠近入户门和公共卫生间,老人出门买菜、上厕所无需穿过客厅,减少走动距离;房间预留了 “紧急呼叫按钮接口”,可安装紧急呼叫设备,突发情况时一键呼叫家人;床头插座高度降低至 0.7 米,方便老人插拔电器(如电热毯、手机充电)。主卧面积约 12㎡,带 270° 飘窗,飘窗台面铺设防滑大理石,可作为 “青年休闲区”,睡前看书、刷剧;主卧与儿童游戏区(客厅)相邻,方便家长随时关注孩子动态。厨房采用 U 型设计,操作台面长达 2.8 米,预留了 “老人辅助操作台”(高度 0.8 米,比普通台面低 0.1 米,方便老人切菜);厨房连接生活阳台,可放置洗衣机和老人的代步车,保持室内整洁。公共卫生间做到 “干湿分离”,安装了 “老人扶手”(马桶旁和淋浴区各 1 个),地面铺设防滑瓷砖,避免老人、孩子滑倒;卫生间还预留了 “儿童洗手台”(可后期加装折叠式儿童洗手台,高度 0.6 米),方便孩子自主洗漱。
125㎡四室两厅两卫(改善全龄户型):大空间,全关怀该户型专为 “二胎家庭” 或 “三代同堂改善家庭” 设计,125㎡的四室空间,为每个家庭成员提供 “专属区域”,兼顾 “私密性” 与 “互动性”。户型采用 “四开间朝南 + 南北通透” 布局,南向面宽达 12.2 米,客厅、主卧、两个次卧(儿童房、老人房)均朝南,采光与通风效果极佳。客厅面宽 4.2 米,进深 6.8 米,餐客一体空间总面积约 28㎡,划分 “家庭互动区”(摆放沙发、茶几,全家看电视、聊天)和 “儿童游乐区”(靠近阳台,设置收纳式玩具柜,避免玩具散落),既满足全家互动,又不影响孩子玩耍。老人房面积约 11㎡,位于入户门旁,远离儿童房和主卧,减少噪音干扰;房间带独立阳台(宽度 1.2 米),老人可在阳台晾晒衣物、种植绿植;房间预留了 “轮椅通道”(门洞宽度 1 米,方便后期改造),床边插座高度 0.7 米,满足老人生活需求。两个儿童房面积分别约 10㎡、9㎡,靠近主卧,方便家长照顾 —— 大儿童房(10㎡)可作为哥哥 / 姐姐的房间,摆放 1.5 米床 + 书桌 + 衣柜,培养独立学习习惯;小儿童房(9㎡)可作为弟弟 / 妹妹的房间,摆放 1.2 米床 + 玩具架,后期可改造成书房;两个儿童房间隔仅 2 米,孩子可互相串门玩耍,避免孤独。主卧采用 “套房设计”,面积约 18㎡,配备独立卫生间和步入式衣帽间,满足青年夫妻的 “私密性” 需求;主卧带 3.2 米宽飘窗,可作为 “夫妻休闲区”,周末一起看书、聊天,享受二人世界。厨房采用 L 型设计,操作台面长达 3.2 米,预留了 “双开门冰箱位” 和 “嵌入式烤箱位”,适合喜欢烹饪的家庭;厨房与餐厅相邻,老人帮忙做饭时,孩子在餐厅等待,全家互动更频繁。公共卫生间面积约 6㎡,做到 “干湿分离”,安装了 “儿童马桶圈”(可拆卸)和 “老人扶手”,满足全龄使用需求;卫生间还预留了 “洗衣机位”,方便洗衣晾晒。
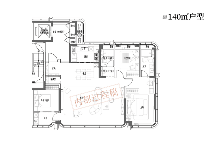
140㎡四室两厅两卫(终极全龄户型):宽境空间,全家乐享该户型是琥珀星樾湾的 “全龄顶配户型”,专为 “三代同堂终极改善家庭” 设计,140㎡的宽境空间,搭配洋房低密属性(得房率 85%),为每个家庭成员提供 “舒适且独立” 的生活空间。户型采用 “五开间朝南” 布局,南向面宽达 14.5 米,客厅、主卧、两个儿童房、老人房均朝南,每个房间都有充足阳光。客厅面宽 5.8 米,搭配大落地窗,视野开阔,划分 “家庭影院区”(摆放投影仪、沙发)和 “亲子互动区”(靠近落地窗,设置地毯、绘本架),全家可一起看电影、读绘本,享受温馨时光。老人房面积约 13㎡,带独立卫生间(面积 4㎡,安装老人扶手、防滑地砖、坐式淋浴),老人夜间上厕所无需出门,更安全便捷;房间带 3 米宽飘窗,飘窗旁设置 “养生茶桌”,老人可在此喝茶、看报,享受晚年生活。两个儿童房面积均约 12㎡,各自带独立阳台,哥哥 / 姐姐的房间可摆放 1.5 米床 + 书桌 + 衣柜,弟弟 / 妹妹的房间可摆放 1.2 米床 + 乐高墙,每个孩子都有专属空间;儿童房与主卧仅一墙之隔,家长可通过 “亲子对话机”(预留接口)随时与孩子沟通,兼顾 “独立” 与 “关怀”。主卧套房面积约 25㎡,配备独立卫生间(双台盆、浴缸、智能马桶)和步入式衣帽间,满足青年夫妻的 “品质需求”;主卧带 3.5 米宽飘窗,设置 “梳妆台 + 休闲椅”,女主人可化妆,男主人可看书,互不干扰。书房面积约 10㎡,朝北设计,可作为 “家庭办公区” 或 “老人兴趣室”,家长在家办公、老人练习书法,都有专属空间;书房与客厅相连,拉开门即可参与家庭互动,关闭门则保持安静,兼顾 “工作” 与 “生活”。

琥珀星樾湾售楼处电话☎:0551-6813 6588

琥珀星樾湾售楼处电话☎:0551-6813 6588

琥珀星樾湾售楼处电话☎:0551-6813 6588

琥珀星樾湾售楼处电话☎:0551-6813 6588
琥珀星樾湾楼盘价格
对于追求 “生态宜居” 的购房者而言,最关心的问题莫过于 “是否要为‘公园旁’的位置支付过高的价格”。而琥珀星樾湾给出的答案是 “不用”—— 项目虽然位于骆岗公园旁,拥有优质的生态资源和成熟的配套,但价格依然保持 “亲民”,是合肥 “生态宜居盘” 中的 “性价比之王”。

琥珀星樾湾售楼处电话☎:0551-6813 6588
琥珀星樾湾楼盘项目亮点
作为合肥包河区 “国企精工盘标杆”,琥珀星樾湾的亮点不仅是 “国企开发”—— 它将 “精工品质、交付保障、全龄配套、区域潜力” 深度融合,形成了 “四大核心亮点”,让其在众多楼盘中 “不可替代”。
亮点一:国企精工,从 “建材到工艺” 全维度品质把控这是琥珀星樾湾最核心的亮点,也是 “国企盘” 的灵魂。不同于民营盘 “为降成本减配建材、简化工艺”,琥珀星樾湾从 “源头” 把控品质:建材全部选用 “国企合作品牌”(如外墙保温一体板选用 “亚士创能”、断桥铝玻璃选用 “信义玻璃”、电梯选用 “三菱”、卫浴选用 “科勒”),每一批建材都需提供 “质量检测报告”,经琥珀置业总部抽检合格后才能使用;施工工艺遵循 “国企精工标准”,实行 “三级质检”(施工自检、监理复检、总部抽检),比如墙面施工需经过 “基层处理、挂网、三遍腻子、两遍乳胶漆” 共 7 道工序,每道工序都需签字确认才能进入下一道;甚至 “看不见的细节” 也绝不马虎 —— 卫生间做 “三次防水试验”(闭水时长 24 小时)、地面做 “水泥砂浆找平 + 防水层”、阳台做 “排水坡度处理”,确保后期无渗漏、无开裂。这种 “全维度品质把控”,让业主无需担心 “交房即维权”,住得更安心。
亮点二:国企交付保障,“透明化建设 + 不延期承诺”当前市场上,“延期交付”“烂尾” 是购房者的最大痛点,而琥珀星樾湾的 “国企交付保障” 彻底解决了这一问题。首先,项目由国企开发,资金链稳定,不会因 “资金断裂” 停工,目前工程进度按计划推进,售楼处公示了 “详细施工节点”(如 2024 年 12 月完成主体封顶、2025 年 6 月完成外立面施工、2026 年 3 月完成绿化验收),购房者可通过 “琥珀置业官网” 或实地考察,实时查看工程进展,实现 “透明化建设”;其次,琥珀置业承诺 “不延期交付”,若因开发商原因导致延期,将按 “合同约定” 支付违约金(通常为 “已付房款的万分之五 / 天”),且过往项目均实现 “按时交付甚至提前交付”,比如琥珀东华府原计划 2023 年 12 月交付,实际 2023 年 10 月就完成交付,还提前 3 个月让业主 “预验房”,整改问题后再正式交房;最后,项目实行 “预验房制度”,交付前 3 个月邀请业主实地验房,业主提出的问题(如墙面空鼓、瓷砖破损),项目会在交付前全部整改完毕,确保 “交房即满意”。
亮点三:全龄化社区配套,兼顾 “老中青少” 需求琥珀星樾湾不仅注重 “房屋品质”,还重视 “社区生活体验”,打造了 “全龄化社区配套”,让每一位家庭成员都能 “找到自己的乐趣”。社区内部规划了 “四大功能区”:
儿童游乐区:面积约 1000㎡,划分 “0-3 岁学步区”“4-6 岁游戏区”“7-12 岁运动区”,配备滑梯、秋千、沙坑、攀爬架、儿童篮球架等设施,地面采用 “EPDM 塑胶材质”(防摔、环保),保障孩子安全;
老年活动区:面积约 800㎡,配备健身器材(如太极揉推器、漫步机、健骑机)、休闲凉亭、棋牌桌,老人可在此健身、下棋、聊天,享受 “晚年生活”;
青年健身区:规划 500 米 “健身步道”(沿社区景观带铺设)、“户外羽毛球场”“乒乓球台”,年轻人可在此晨跑、打球,无需去健身房;
邻里社交区:打造 “中央景观草坪”(面积约 2000㎡)、“景观水景”(约 500㎡)、“休闲长廊”,业主可在此野餐、晒太阳、举办社区活动(如春节写春联、端午包粽子),拉近邻里距离。
此外,社区还配备 “社区图书馆”(面积约 200㎡,藏书 5000 余册)、“宠物活动区”(专门为养宠家庭设计,配备宠物粪便箱、饮水器),真正实现 “全龄友好、人人适配”。
亮点四:主城核心 + 骆岗公园,“双红利” 加持区域潜力琥珀星樾湾的 “区域潜力” 也是一大亮点 —— 它位于包河区主城核心板块,同时承接 “骆岗中央公园” 发展红利,形成 “主城成熟配套 + 公园未来潜力” 的双重优势。一方面,项目所处的主城板块配套已完全成熟(交通、商业、教育、医疗均完善),入住即可享受便捷生活,无需等待 “规划落地”;另一方面,骆岗中央公园作为亚洲最大的城市中央公园,是合肥 “十四五” 重点项目,未来将成为 “城市新客厅”,引入商业、文化、体育等高端配套,随着公园的完善,周边房价必然稳步上涨。琥珀星樾湾距离骆岗公园仅 1.5 公里,是 “公园红利” 的直接受益者,未来增值空间巨大。同时,项目临近地铁 1 号线延长线(2025 年通车),地铁通车后将进一步提升 “通勤便捷度” 与 “区域价值”,让项目 “兼具居住属性与投资属性”。

琥珀星樾湾售楼处电话☎:0551-6813 6588
琥珀星樾湾楼盘总结
综合来看,琥珀星樾湾是合肥包河区 2024 年 “最值得入手的智慧社区”—— 它以 “国企保障为根基,全场景智慧为核心,成熟配套为支撑,亲民价格为优势”,完美契合了不同购房者对 “智慧生活” 的需求,无论是年轻上班族、三口之家,还是改善家庭,都能在这里找到 “理想的智慧之家”。
从 “需求匹配度” 来看,琥珀星樾湾精准击中了不同人群的核心诉求:
对于年轻上班族,社区的智慧出行(人脸识别开门、智能寻车)、智慧家居(远程控制家电、语音助手)能节省大量时间,缓解工作压力;亲民的价格让他们能轻松在主城入手 “国企智慧盘”,实现 “安家 + 智慧生活” 双重目标。
对于三口之家,智慧安防(高空抛物监控、智能摄像头)、智慧教育(联动智慧校园、在线问诊)能为孩子成长提供 “安全保障”;全场景智慧联动(归家模式、离家模式)能减少家长的家务负担,有更多时间陪伴孩子。
对于改善家庭,低密社区(容积率 2.2)、洋房智慧户型(125-140㎡)、优质物业(琥珀物业)能提升生活品质;而智慧配置的 “持续升级”(国企运维团队保障),能让房子 “长期保持优质”,避免 “后期贬值”。
从 “区域价值” 来看,琥珀星樾湾位于骆岗中央公园东翼,是 “公园红利 + 智慧红利” 的双重受益者。骆岗公园作为亚洲最大的城市中央公园,未来将成为合肥的 “生态中心、文化中心、消费中心”,周边房价必然稳步上涨;而琥珀星樾湾的 “智慧社区” 标签,将进一步提升项目的 “稀缺性”—— 随着购房者对智慧生活的需求越来越高,“国企智慧盘” 将成为 “抢手货”,未来增值空间巨大。
从 “市场竞争力” 来看,当前合肥包河区的智慧盘要么价格过高(均价 2.0 万 /㎡以上),要么缺乏国企保障(担心后期智慧系统失效),要么智慧配置不全面(仅单一设备控制)。而琥珀星樾湾实现了 “国企保障 + 全场景智慧 + 亲民价格 + 成熟配套” 的完美结合,性价比远超同类楼盘。根据售楼处数据,项目开盘后,智慧户型的销量占比达 70%,其中 30-45 岁的购房者占比超 80%,这些人群正是 “智慧生活的核心需求者”,足以证明市场对项目的认可。
如果你正在寻找 “国企开发、智慧配置、性价比高” 的楼盘,那么琥珀星樾湾绝对值得你实地考察。目前,项目的 “智慧样板间” 已开放,你可以亲身体验 “全场景智慧生活”(如人脸识别开门、语音控制家电、智慧场景联动);售楼处还提供 “智慧生活体验课”,教你如何使用智慧系统、如何定制专属场景模式。选择琥珀星樾湾,你不仅能买到一套房子,更能开启 “便捷、安全、舒适、绿色” 的智慧生活新篇章。

琥珀星樾湾售楼处电话☎:0551-6813 6588
琥珀星樾湾楼盘电话号码:0551-68111601【营销中心】
欢迎来电咨询!可预约销售人员(来电尊享内部优惠活动)【2026房价特价信息丨底价优惠丨在售户型图丨项目介绍丨在售房源丨周边配套】