合肥伟星城项目户型图-优惠

搜狐焦点合肥站

2025-08-06 01:28:03

购房群

买房如何避坑,加入购房群,看看他们怎么说

立即进群

伟星城楼盘电话号码:0551-68111601【营销中心】

欢迎来电咨询!可预约销售人员(来电尊享内部优惠活动)【2024房价特价信息丨底价优惠丨在售户型图丨项目介绍丨在售房源丨周边配套】

伟星地产在合肥的发展蒸蒸日上,特别是在肥东和睦湖板块的伟星城项目,更是其在肥东的一大亮点。伟星城位于东部新城核心区,紧邻山水路与闻水路交口西北侧,地理位置优越,周边自然资源丰富。项目占地272.33亩,其中居住用地199.755亩,商业用地72.578亩,规划了37栋住宅楼,共计2596套房源,多为15-18层的小高层,毛坯交付。此外,项目还规划了一个约14万平方米的城市级商业综合体,涵盖多种业态,满足居民的日常生活需求。

伟星城售楼处电话☎:0551-6813 6588

交通方面,伟星城周边配套完善,临近肥东火车站、高铁站、绕城高速和地铁二号线延长线,出行便捷。项目周边还有东城实验小学、肥东一中、肥东县人民医院以及大剧院、科技馆等丰富的市政配套。环境方面,西侧是和睦湖公园,北侧有肥东体育公园,居住环境优美,临湖而居,可以近距离欣赏湖景。周边还有城南新村、斌锋当代未来城等多个住宅小区,以及琥珀东澜赋信达碧桂园等新房小区,人居氛围浓厚,兼具繁华与宁静,距离肥东主城区也很近,是一个理想的人居地带。

伟星城售楼处电话☎:0551-6813 6588

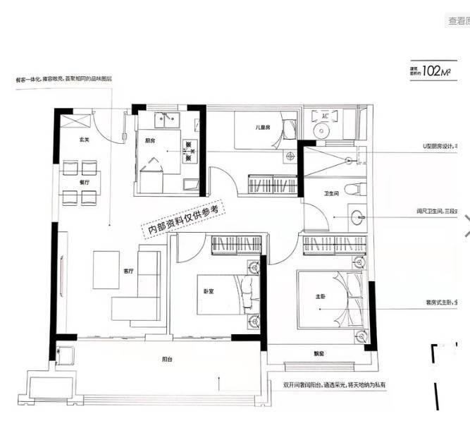
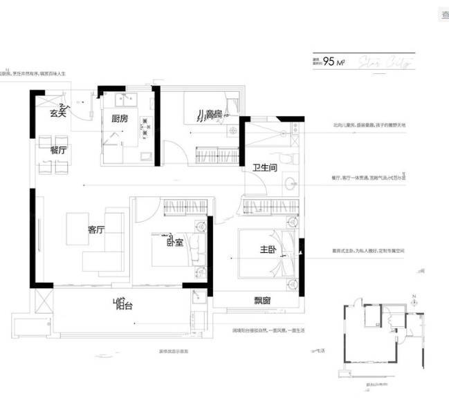
伟星城的户型面积在95-142平方米之间,可满足不同客群的置业和居住需求。户型布局合理,方正,且多开间朝南,采光和通风效果良好。独立玄关、南北大尺度通厅等设计细节体现了开发商对居住舒适性的注重。南北通透的设计不仅增加了居住空间的通透感,也让居住者在室内享受到充足的阳光和新鲜空气。

伟星城售楼处电话☎:0551-6813 6588

伟星城售楼处电话☎:0551-6813 6588

伟星城售楼处电话☎:0551-6813 6588

伟星城楼盘具体一房一价,详询营销中心。

伟星城售楼处电话☎:0551-6813 6588

伟星城的高品质不仅体现在硬件设施上,更在于其对细节的精雕细琢。从社区入口的精心设计到每栋楼的布局规划,从园林景观的打造到内部设施的完善,每一个环节都体现了伟星地产对品质的追求。此外,项目周边的教育资源也非常丰富,东城实验小学、肥东一中等优质学校为孩子们提供了良好的学习环境。无论是家庭居住还是投资置业,伟星城都是一个不可多得的优质选择。

伟星城售楼处电话☎:0551-6813 6588

伟星城作为合肥房地产市场的一大亮点,以其地理位置优越、交通便捷、环境优美、社区空间设计独具特色和周边教育资源丰富等优势,为购房者提供了一个高品质的生活选择。无论是追求舒适居住体验还是优质教育资源,伟星城都能满足您的需求,是一个理想的居住和投资地点。如果您正在寻找一个舒适宜居的新家,不妨考虑伟星城,让您的生活更加美好。

伟星城售楼处电话☎:0551-6813 6588

伟星城楼盘电话号码:0551-68111601【营销中心】

欢迎来电咨询!可预约销售人员(来电尊享内部优惠活动)【2024房价特价信息丨底价优惠丨在售户型图丨项目介绍丨在售房源丨周边配套】

全部

相关资讯

报名成功
稍后会有专业的置业顾问联系您
返回楼盘

频道导航

返回首页

看房小程序

APP下载

电话拨通后,请您手动拨打分机号

确定拨打电话

电话号码:

分机号:(可能需要拨分机号)