新站区招商奥体公园深度楼盘评测-优缺点全解析

搜狐焦点合肥站

2025-08-17 21:47:12

购房群

买房如何避坑,加入购房群,看看他们怎么说

立即进群

招商奥体公园楼盘电话号码:0551-6258 9911【营销中心】

欢迎来电咨询!可预约销售人员(来电尊享内部优惠活动)

【2024房价特价信息丨详细解答丨在售户型图丨项目介绍丨在售房源丨周边配套】

合肥招商奥体公园楼盘坐落于新站区,具体位置为东方大道与卧龙湖路交口南侧200米处。这一楼盘由合肥招盛房地产开发有限公司和合肥卓盛房地产开发有限公司联合开发,后者隶属于知名的招商蛇口集团。项目的物业管理则由招商局积余产业运营服务股份有限公司负责,具备国家一级物业资质。该项目主要包括高层、小高层和洋房类型,交付标准为精装修,容积率在1.8至2.0之间,绿化率高达40%,为住户提供了良好的居住环境。

招商奥体公园的总户数为5746户,车位配比为1:1,部分资料显示为1:1.03,确保了车位的充足供给。根据最新信息,项目一期和二期已完成交付并可即刻入住,三期和四期预计将在2024年12月底交房,而五期则计划在2025年12月底交房,物业费为每平方米2.4元。

招商奥体公园售楼处电话☎:0551-6813 6588

合肥招商奥体公园的一个显著特点是其TOD综合体的建设,项目内设有室内万人体育场馆、地铁上盖长空公园,以及活力荟商业街区等多种业态。此外,项目自带约2.5万平方米的“活力荟”商业街区,西侧还规划了一个14万平方米的大型商业综合体,极大地丰富了周边的商业配套。交通方面,该项目紧邻地铁4号线的始发站“综保区站”,并有“奥体巴士”与地铁接驳,方便居民出行。同时,周边的“三纵三横”主干道,如新蚌埠路、铜陵北路和东方大道等,构成了良好的交通网络。

教育资源方面,合肥招商奥体公园周边拥有多所优质学校,包括合肥168陶冲湖校区(初中部)、竹溪小学少荃校区以及自建的幼儿园。这为有孩子的家庭提供了良好的教育环境。医疗配套也相当完善,附近有安徽医科大学第一附属医院北区和京东方医院(数字化医院),为居民的健康提供了保障。生态环境方面,项目邻近少荃湖湿地公园和二十埠河生态廊道,提供了优质的自然景观和休闲空间,使得居住环境更加宜居。

招商奥体公园售楼处电话☎:0551-6813 6588

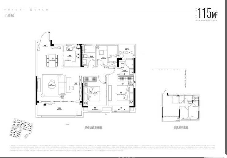
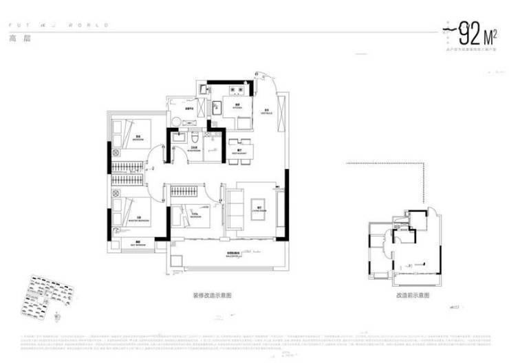
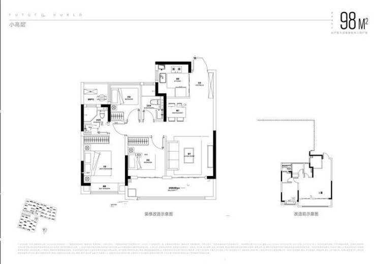
招商奥体公园主打刚需小户型,主力户型面积介于89-119㎡之间,包括二居室和三居室,满足不同购房者的需求。其中,92㎡的户型三室两厅一卫,南北通透的设计,采光和通风良好,主卧带有一个飘窗,卫生间干湿分离,客厅和餐厅一体化设计,空间宽敞。客厅和旁边的卧室阳台相连,阳台空间较大,可打造出一个开放性空间。招商奥体公园的多样户型选择,满足了购房者对于不同空间需求和生活方式的追求。

招商奥体公园售楼处电话☎:0551-6813 6588

招商奥体公园售楼处电话☎:0551-6813 6588

招商奥体公园售楼处电话☎:0551-6813 6588

招商奥体公园售楼处电话☎:0551-6813 6588

招商奥体公园售楼处电话☎:0551-6813 6588

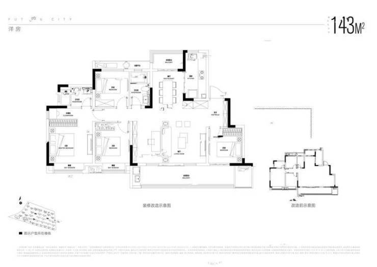
价格方面,招商奥体公园均价在1.7万/㎡左右,相比周边其他项目具有一定的性价比优势。项目主打刚需小户型,主力户型面积介于89-119㎡之间,包括二居室和三居室,满足不同购房者的需求。部分四室户型面积达到143㎡,也可供选择。其中,92㎡的户型三室两厅一卫,南北通透设计,采光和通风良好,空间利用较为合理,适合家庭居住。

招商奥体公园售楼处电话☎:0551-6813 6588

招商奥体公园的推出,为合肥新站区少荃湖板块的发展注入了新的活力。以优越的地理位置、丰富的配套设施、优质的住宅产品和可靠的品牌背书,招商奥体公园必将成为当地居民理想的居住选择。随着项目的不断建设和完善,未来将会吸引更多购房者前来关注和购买,也将提升当地的房地产市场发展水

招商奥体公园售楼处电话☎:0551-6813 6588

招商奥体公园作为合肥新站奥体板块内的一个重要项目,不仅拥有丰富的商业配套和教育医疗资源,还提供多样化的户型选择和优惠政策,吸引了众多购房者的关注。未来,随着项目的逐步完善和发展,相信会为当地居民带来更多的便利和幸福感。

招商奥体公园售楼处电话☎:0551-6813 6588

招商奥体公园

招商奥体公园营销中心电话:0551-6258 9911【已认证】

招商奥体公园售楼处电话:0551-6258 9911【已认证】

招商奥体公园展示中心电话:0551-6258 9911【已认证】

全部

相关资讯

报名成功
稍后会有专业的置业顾问联系您
返回楼盘

频道导航

返回首页

看房小程序

APP下载

电话拨通后,请您手动拨打分机号

确定拨打电话

电话号码:

分机号:(可能需要拨分机号)