信达碧桂园-楼盘分析报告丨合肥房天下

搜狐焦点合肥站

2025-03-17 00:52:29

购房群

买房如何避坑,加入购房群,看看他们怎么说

立即进群

信达碧桂园楼盘电话号码:0551-68111601【营销中心】

欢迎来电咨询!可预约销售人员(来电尊享内部优惠活动)【2024房价特价信息丨底价优惠丨在售户型图丨项目介绍丨在售房源丨周边配套】

信达碧桂园项目位于肥东县酿泉路与日出路交口西北角,地理位置优越,交通便利,周边配套设施齐全,吸引了众多购房者的目光。项目规划33栋住宅楼,包括28栋高层和5栋洋房,总占地面积165.59亩,规划用途为居住,容积率≤2.0。一期交付时间为2023年5月30日,二期交付时间为2024年4月30日,给购房者提供了明确的期待。项目交付标准为毛坯,让购房者可以根据自己的喜好和需求进行装修,更加个性化和自由。

信达碧桂园不仅提供高品质的居住环境,还拥有丰富的周边配套设施。交通便利是其一大优势,紧邻地铁2号线东延线,肥东高铁站,有轨电车(规划中)等多种出行方式,让居民能够快速到达城市各处。同时,项目周边还有多所优质学校、医疗机构和商业设施,满足居民的各种需求。生态环境优越,周边有多个公园供居民休闲使用,让居民能够享受到便利舒适的生活。

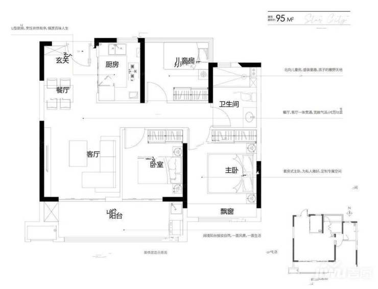
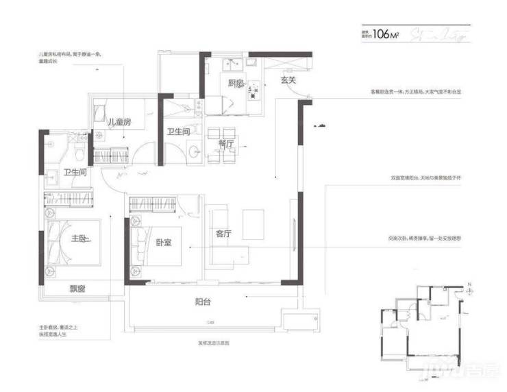
信达碧桂园在户型设计上,打造了三室两厅一卫的95㎡、两卫的105㎡和四室两厅两卫的118㎡的房型,让购房者尽享轻奢生活。所有户型都采用方正、全明布局,阳光四季充足、通风性好,空间利用率高,实现了“动静分区”,提高了业主的居住舒适度。无论是单身青年还是三口之家,都可以在这里找到适合自己的理想家园。

信达碧桂园楼盘具体一房一价,详询营销中心。

在信达碧桂园项目中,醇熟的配套设施和舒适的生活环境为业主带来了高品质的居住体验。无论是规划合理的社区环境,还是优质的房型设计,亦或是便捷的生活配套,都让这个项目成为了一个值得期待和选择的理想之地。关于项目的更多信息和动态,建议有意购买的业主及时关注并预订。选择信达碧桂园,将为您的生活带来一份轻奢享受,值得期待!

总而言之,信达碧桂园项目不仅提供高品质的住房产品,还拥有便利的交通、商业和教育配套,以及丰富的生态资源,为业主打造了一个全方位的舒适生活体验。想要享受高端生活?不妨考虑信达碧桂园!

信达碧桂园楼盘电话号码:0551-68111601【营销中心】

欢迎来电咨询!可预约销售人员(来电尊享内部优惠活动)【2024房价特价信息丨底价优惠丨在售户型图丨项目介绍丨在售房源丨周边配套】

全部
报名成功
稍后会有专业的置业顾问联系您
返回楼盘

频道导航

返回首页

看房小程序

APP下载

电话拨通后,请您手动拨打分机号

确定拨打电话

电话号码:

分机号:(可能需要拨分机号)