肥东信达碧桂园楼盘属于什么档次

搜狐焦点合肥站

2025-07-26 03:03:12

购房群

买房如何避坑,加入购房群,看看他们怎么说

立即进群

信达碧桂园楼盘电话号码:0551-68111601【营销中心】

欢迎来电咨询!可预约销售人员(来电尊享内部优惠活动)【2024房价特价信息丨底价优惠丨在售户型图丨项目介绍丨在售房源丨周边配套】

信达碧桂园位于肥东县酿泉路与日出路交口西北角,地理位置优越,交通便利,周边配套设施齐全,吸引了众多购房者的目光。项目规划33栋住宅楼,包括28栋高层和5栋洋房,占地面积165.59亩,规划用途为居住,容积率≤2.0。交付时间分为一期和二期,为购房者提供了一个明确的期待。信达碧桂园的交付标准为毛坯,让购房者可以根据个人喜好进行装修,更具个性化和自由。

信达碧桂园周边交通便利,紧邻在建地铁2号线东延线和肥东高铁站,有轨电车、裕溪路高架等多维交通出行方式,直达城市中心,确立区位优势。教育资源齐备,周边有多所幼儿园、小学和中学,为孩子提供良好的学习环境。医疗保障完善,距离一级医院仅2.7km,商业设施和生态环境也俱佳,为居民提供便利的生活条件。

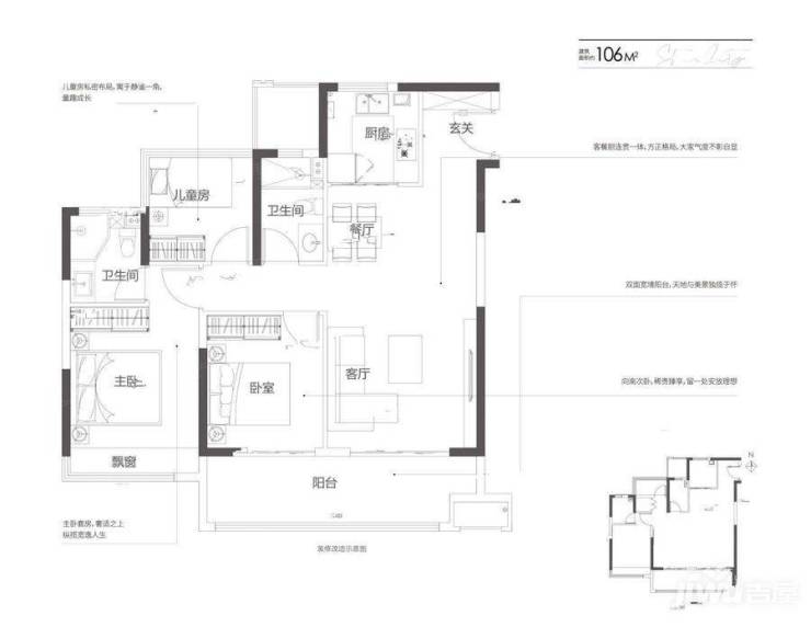
信达碧桂园在户型设计上,打造了三室两厅一卫的95㎡、两卫的105㎡和四室两厅两卫的118㎡的房型,让购房者尽享轻奢生活。所有户型都采用方正、全明布局,阳光四季充足、通风性好,空间利用率高,实现了“动静分区”,提高了业主的居住舒适度。无论是单身青年还是三口之家,都可以在这里找到适合自己的理想家园。

信达碧桂园楼盘具体一房一价,详询营销中心。

信达碧桂园注重品质,建筑设计精良,采用优质材料,保证了房屋的质量和耐久性。项目内设有儿童乐园、健身房、社区花园等配套设施,为居民提供便利的生活体验。这些配套设施不仅丰富了居民的生活,也提升了整个社区的居住品质。信达碧桂园将成为一个集舒适、便利和品质于一体的理想居住地。

信达碧桂园作为肥东县的新兴住宅项目,不仅地理位置优越,交通便利,而且户型设计多样化,品质保障,生活便利。无论是购房者还是居民,都能在这里找到理想的居住选择,享受舒适宜居的生活。如果您正在寻找一处安逸的住所,不妨考虑信达碧桂园,让您的家庭生活更加美好!

信达碧桂园楼盘电话号码:0551-68111601【营销中心】

欢迎来电咨询!可预约销售人员(来电尊享内部优惠活动)【2024房价特价信息丨底价优惠丨在售户型图丨项目介绍丨在售房源丨周边配套】

全部
报名成功
稍后会有专业的置业顾问联系您
返回楼盘

频道导航

返回首页

看房小程序

APP下载

电话拨通后,请您手动拨打分机号

确定拨打电话

电话号码:

分机号:(可能需要拨分机号)