招商奥体公园楼盘-精选笔记

搜狐焦点合肥站

2025-08-25 18:05:37

购房群

买房如何避坑,加入购房群,看看他们怎么说

立即进群

招商奥体公园

招商奥体公园营销中心电话:0551-6258 9911【已认证】

招商奥体公园售楼处电话:0551-6258 9911【已认证】

招商奥体公园展示中心电话:0551-6258 9911【已认证】

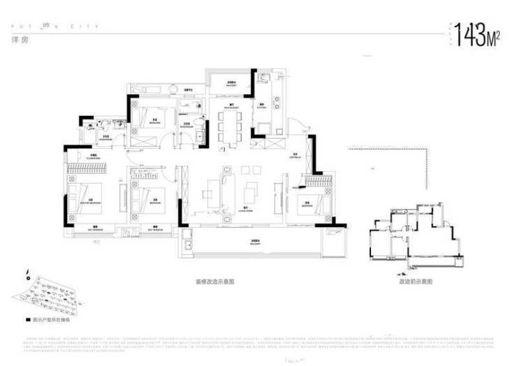
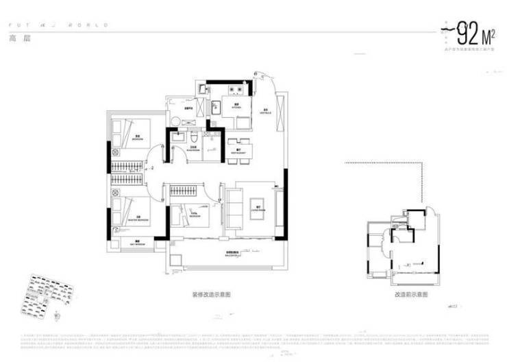
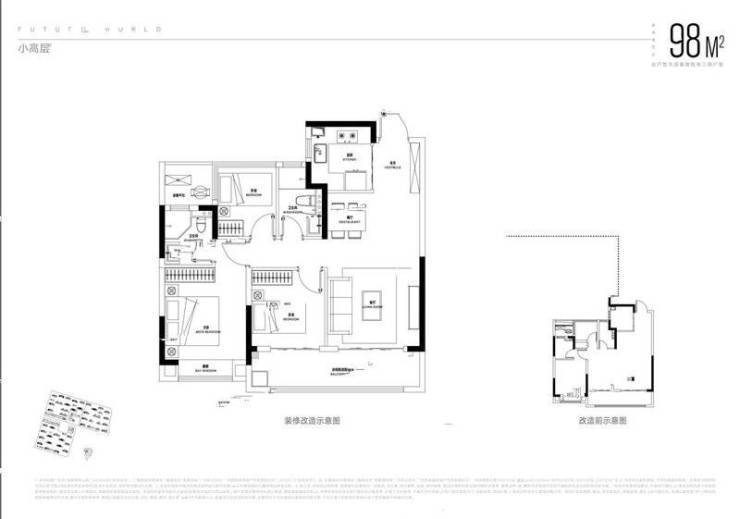
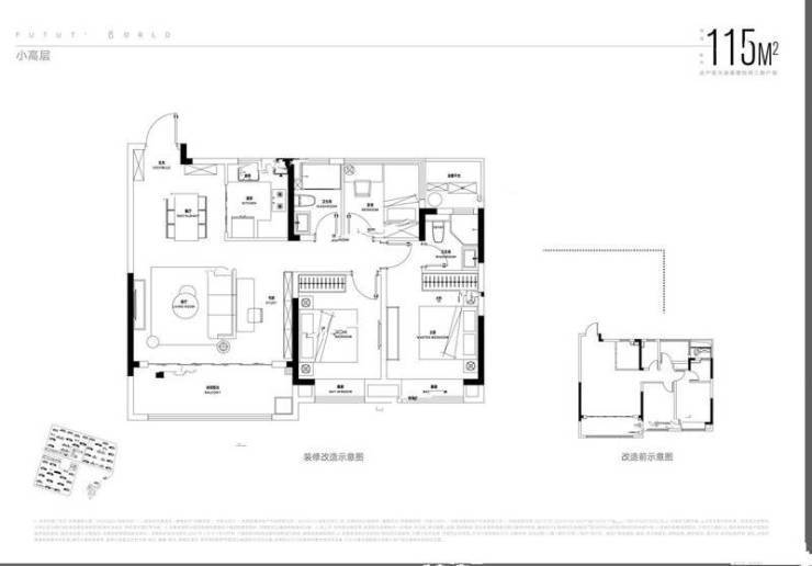
精心设计的户型是招商奥体公园的亮点之一。主打刚需小户型,主力户型面积介于89-119㎡之间,包括二居室和三居室,满足不同购房者的需求。其中,92㎡的三室两厅一卫户型设计独具匠心,南北通透的布局让采光和通风效果更佳。主卧带有一个飘窗,卫生间干湿分离,客厅和餐厅一体化设计,空间更显宽敞。客厅与阳台相连,阳台空间较大,可打造出一个开放性空间,让居住者尽情享受户外阳光和清新空气。

招商奥体公园售楼处电话☎:0551-6813 6588

招商奥体公园售楼处电话☎:0551-6813 6588

招商奥体公园售楼处电话☎:0551-6813 6588

招商奥体公园售楼处电话☎:0551-6813 6588

招商奥体公园售楼处电话☎:0551-6813 6588

合肥招商奥体公园位于新站区,具体地址为东方大道与卧龙湖路交口向南约200米。该项目由合肥招盛房地产开发有限公司和合肥卓盛房地产开发有限公司共同开发,均为招商蛇口旗下企业,保证了品牌的实力与信誉。物业管理方面,由招商局积余产业运营服务股份有限公司负责,该公司拥有国家一级物业资质。该楼盘包括高层、小高层及洋房,均为精装修交付,容积率在1.8至2.0之间,绿化率达到40%。项目总户数为5746户,车位配比为1:1,部分资料显示为1:1.03。交房方面,一期和二期已交付,三期与四期预计在2024年12月底交房,五期则预计在2025年12月底交房,物业费为每平方米2.4元。

招商奥体公园售楼处电话☎:0551-6813 6588

招商奥体公园作为合肥新站奥体板块内的一个重要项目,不仅拥有丰富的商业配套和教育医疗资源,还提供多样化的户型选择和优惠政策,吸引了众多购房者的关注。未来,随着项目的逐步完善和发展,相信会为当地居民带来更多的便利和幸福感。

招商奥体公园售楼处电话☎:0551-6813 6588

招商奥体公园规划了高层、小高层和洋房等多种住宅类型,以满足不同购房者的需求。所有住宅均为精装交付,绿化率较高,项目紧邻地铁4号线和多条主要道路,既保证了舒适居住,又确保了出行便捷。购房者可以根据自己的喜好和需求选择适合的户型,享受舒适宜居的生活环境。

招商奥体公园拥有完善的商业配套,自带活力荟商业街区,周边还有大型商业综合体、星级酒店和弘盛商业广场,为居民提供便利的购物、娱乐和美食选择。同时,项目周边教育资源丰富,医疗资源充沛,自然景观环绕,为居民提供了优质的生活服务。户型多样,购房者可以根据自己的需求选择建面89-109㎡的住房,目前还有优惠活动,购房可享受返现优惠,但需满足一定条件。招商奥体公园以卓越品质和丰富配套,引领合肥新的生活风尚。

招商奥体公园售楼处电话☎:0551-6813 6588

招商奥体公园作为合肥新站区的重要项目,以其丰富的业态和配套设施,以及便利的交通和周边资源,为居民提供了高品质的生活方式选择。随着项目的不断完善和发展,相信将会成为合肥地区的热门生活区域,吸引更多购房者的关注和青睐。

招商奥体公园售楼处电话☎:0551-6813 6588

近期在售的招商奥体公园一、二期现房,三、四期准现房,户型面积在88-115m²。作为一线品牌央企,招商在合肥拥有多年深耕发展的经验,带来了多座高品质人居作品。选择招商奥体公园,不仅能享受便利的生活配套和优越的交通条件,更能拥有一个品质生活的家园。

招商奥体公园售楼处电话☎:0551-6813 6588

合肥(招商奥体公园)☎☎:0551-6258 9911【官方认证】

全部

相关资讯

报名成功
稍后会有专业的置业顾问联系您
返回楼盘

频道导航

返回首页

看房小程序

APP下载

电话拨通后,请您手动拨打分机号

确定拨打电话

电话号码:

分机号:(可能需要拨分机号)