琥珀星樾湾楼盘电话号码:0551-68111601【营销中心】
欢迎来电咨询!可预约销售人员(来电尊享内部优惠活动)【2026房价特价信息丨底价优惠丨在售户型图丨项目介绍丨在售房源丨周边配套】
合肥包河区琥珀星樾湾 —— 骆岗公园旁的宜居盘!生态 + 配套,开启品质生活
琥珀星樾湾楼盘项目介绍
在合肥,“骆岗公园” 早已不是一个单纯的公园名称,而是 “城市新中心”“高品质生活” 的代名词。而琥珀星樾湾,恰好位于骆岗中央公园东翼,是距离公园最近的国企楼盘之一,凭借 “公园旁 + 主城芯 + 低密社区” 的独特优势,成为合肥 2024 年最受关注的 “生态宜居盘”。
项目由合肥城建旗下琥珀置业开发,作为合肥本土国企,琥珀置业在 “生态宜居盘” 开发方面有着深厚的经验,此前打造的琥珀东华府、琥珀蜀熙府等项目,均以 “高绿化率、优景观” 闻名。此次打造的琥珀星樾湾,更是将 “生态宜居” 理念贯彻到项目的每一个细节:项目总占地面积约 68 亩,总建筑面积约 12.5 万㎡,容积率仅 2.2.绿化率高达 40%,这个指标在骆岗公园周边楼盘中处于领先水平 —— 要知道,骆岗公园周边多数楼盘为了追求利润,容积率都在 2.5 以上,而琥珀星樾湾通过降低容积率,为业主打造了 “更宽松、更舒适、更生态” 的居住环境。
从项目规划来看,琥珀星樾湾采用 “高层 + 洋房” 的高低配布局,共 10 栋住宅,其中 6 栋 18-22 层高层、4 栋 11 层洋房,总户数约 890 户。社区内部景观以 “骆岗公园生态” 为灵感,打造 “一轴两园三巷” 的景观体系:中央景观轴贯穿南北,以 “水” 为主题,打造了约 500㎡的景观水池,搭配喷泉、水生植物,营造 “亲水生活”;两个主题花园分别为 “樱花园” 和 “桂花园”,春季樱花盛开、秋季桂花飘香,四季有景;三条特色巷道分别为 “银杏巷”“紫薇巷”“海棠巷”,种植不同的花卉树木,打造 “一步一景” 的体验。此外,社区还规划了约 1000㎡的儿童游乐区、800㎡的老年活动区、500 米的健身步道,满足不同年龄段业主的休闲需求。
建筑设计上,琥珀星樾湾也充分考虑 “生态宜居” 需求:外立面采用 “浅灰色 + 米白色” 的淡雅色调,搭配大面积玻璃幕墙,与骆岗公园的自然景观相呼应;窗户选用断桥铝双层中空玻璃,隔音隔热效果好,既能隔绝外界噪音,又能减少空调使用,节能环保;社区采用 “人车分流” 设计,地面无车辆通行,既保障了业主安全,又减少了尾气污染,提升了社区的空气质量;此外,社区还规划了 “屋顶绿化” 和 “垂直绿化”,在高层屋顶种植绿植,在洋房墙面种植爬藤植物,进一步提升社区的绿化覆盖率,打造 “空中花园社区”。

琥珀星樾湾售楼处电话☎:0551-6813 6588
琥珀星樾湾楼盘周边配套
对于 “生态宜居盘” 而言,“配套” 不仅要 “便捷”,更要 “与生态融合”—— 既要有成熟的生活配套,又要有优质的生态资源,而琥珀星樾湾的周边配套,恰好实现了 “生态与便捷的完美结合”。
生态配套是琥珀星樾湾的 “核心竞争力”,项目周边 3 公里内有三大生态公园,形成 “天然氧吧”,为业主提供 “出门即公园” 的生活体验。其中,最核心的是骆岗中央公园,距离项目仅 1.5 公里,该公园是合肥 “十四五” 重点项目,总面积约 12.7 平方公里,相当于 1700 多个足球场大小,目前已建成 “锦绣湖湿地”“城市花海”“运动公园”“儿童乐园” 等区域。锦绣湖湿地面积约 2.5 平方公里,湖水清澈,周边种植了芦苇、菖蒲等水生植物,栖息着白鹭、野鸭等鸟类,是观鸟、散步的好去处;城市花海面积约 1000 亩,种植了虞美人、波斯菊、向日葵等花卉,春季和秋季花开成片,是合肥著名的 “打卡地”;运动公园配备了足球场、篮球场、网球场、健身步道等设施,适合业主运动健身;儿童乐园则有滑梯、秋千、沙坑等游乐设施,是孩子的 “快乐天地”。
除了骆岗中央公园,项目北邻十五里河生态公园,距离约 800 米,该公园沿十五里河打造,长度约 5 公里,宽度约 200 米,种植了大量乔木、灌木和花卉,形成 “城市绿廊”。十五里河生态公园内规划了 “亲水平台”“骑行步道”“野餐草坪” 等区域,业主可以沿河岸骑行、散步,或者在草坪上野餐、放风筝,享受 “自然与生活的融合”。此外,项目东距包河公园约 3 公里,该公园是合肥历史悠久的公园之一,内有包公祠、包公墓等历史文化景点,既可以休闲散步,又可以感受合肥的历史文化。
生活配套方面,琥珀星樾湾同样 “成熟完善”,无需等待 “规划落地”,入住即可享受便捷生活。交通方面,项目临近地铁 1 号线延长线(规划中,2025 年通车)花园大道站,步行约 10 分钟,未来可直达合肥南站、滨湖新区、淮河路步行街;地面交通依托包河大道、繁华大道两条城市主干道,自驾到合肥南站 15 分钟、到滨湖新区 20 分钟、到政务区 30 分钟,通勤便捷。商业方面,项目 3 公里内有悦方 ID MALL、百大心悦城、加侨国际广场三大商场,涵盖购物、餐饮、影院、亲子娱乐等全业态,其中悦方 ID MALL 距离项目仅 2 公里,步行 20 分钟或自驾 5 分钟即可到达,满足业主的 “日常消费” 和 “品质消费” 需求。
教育与医疗配套也十分优质,为业主的 “宜居生活” 保驾护航。教育方面,项目划片范围大概率覆盖屯溪路小学(滨湖校区)和合肥市第四十八中学(望湖校区),这两所学校均为合肥优质公办学校,师资力量雄厚,教学质量高,孩子在家门口就能接受优质教育;医疗方面,项目 2 公里内有包河区人民医院(二级综合医院),5 公里内有安徽省立医院南区(三级甲等医院),日常就医和大病诊疗都十分方便。
可以说,琥珀星樾湾的周边配套,既满足了业主对 “生态宜居” 的追求,又保障了 “生活便捷”,真正实现了 “在公园里生活,在城市中便捷”。

琥珀星樾湾售楼处电话☎:0551-6813 6588
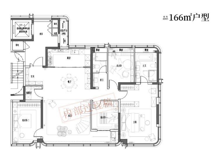
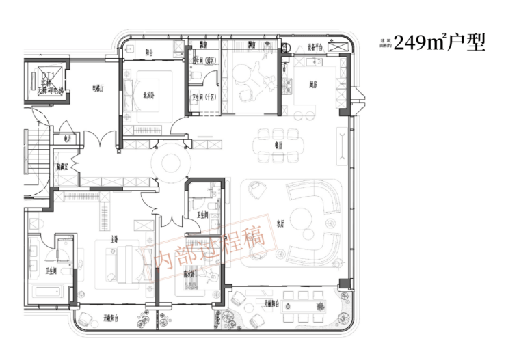
琥珀星樾湾楼盘户型解析
户型是居住体验的 “核心载体”,琥珀星樾湾针对不同人群的需求,设计了 95㎡、110㎡、125㎡、140㎡四种主力户型,每种户型都做到了 “空间利用率高、采光通风好、布局合理”,尤其契合刚需与改善家庭的居住需求。
95㎡三室两厅一卫(刚需首选) 是项目最受欢迎的户型,专为年轻上班族、新婚夫妻设计。该户型采用 “三开间朝南” 布局,客厅、主卧、次卧均朝南,南向面宽达 9.8 米,每天上午 9 点至下午 4 点都有充足阳光,即使在冬季也能保持室内温暖;客厅连接 3.6 米宽的观景阳台,阳台进深 1.8 米,既可作为晾晒区,也可摆放休闲桌椅,打造 “空中花园”;主卧面积约 12㎡,带 270° 飘窗,不仅增加了使用空间,还能俯瞰社区景观;厨房采用 U 型设计,操作台面长达 2.8 米,洗菜、切菜、炒菜动线合理,两人同时操作也不拥挤;卫生间做到 “干湿分离”,洗漱区与淋浴区分开,避免地面潮湿打滑,适合有老人或孩子的家庭。整体来看,95㎡户型没有浪费面积,每个空间都能充分利用,首付仅需 48-54 万,月供约 6000 元,完全在刚需人群的预算范围内,实现 “一步到位” 的三房梦想。
125㎡四室两厅两卫(改善主力) 则针对三口之家、二胎家庭设计,空间更宽敞,功能更齐全。该户型采用 “四开间朝南 + 南北通透” 布局,南向面宽达 12.2 米,客厅与餐厅形成 “竖厅” 设计,南北对流,夏季无需开空调也能保持凉爽;客厅连接 4.2 米宽的阳台,阳台与次卧打通,形成 “贯通式阳台”,长度约 7.8 米,可分为 “晾晒区” 与 “休闲区”,一边晾晒衣物,一边摆放跑步机或茶桌,互不干扰;主卧为 “套房设计”,面积约 18㎡,带独立卫生间与步入式衣帽间,独立卫生间配备浴缸,下班后可泡澡放松,衣帽间可容纳夫妻双方的衣物,提升居住私密性与舒适度;书房面积约 8㎡,既可作为办公区,也可改造成儿童房或老人房,灵活满足家庭不同阶段的需求;厨房为 L 型设计,连接生活阳台,可放置洗衣机与杂物,保持厨房整洁。125㎡户型做到了 “动静分区”,卧室、书房位于内侧,客厅、餐厅、厨房位于外侧,家人休息时不会被客厅噪音打扰,完美契合改善家庭 “既要空间大,又要私密性” 的需求。
此外,110㎡三室两厅两卫户型适合 “刚需升级” 人群,比 95㎡多一个卫生间,主卧带独立卫浴,提升居住舒适度;140㎡四室两厅两卫洋房户型则是 “终极改善” 之选,洋房总高 11 层,一梯两户,得房率高达 85%(高层得房率约 78%),客厅采用 “横厅设计”,面宽达 5.8 米,搭配大落地窗,视野开阔,适合追求品质生活的高净值家庭。无论选择哪种户型,琥珀星樾湾都做到了 “明厨明卫、南北通透、无暗间”,让每个业主都能享受舒适的居住体验。

琥珀星樾湾售楼处电话☎:0551-6813 6588

琥珀星樾湾售楼处电话☎:0551-6813 6588

琥珀星樾湾售楼处电话☎:0551-6813 6588

琥珀星樾湾售楼处电话☎:0551-6813 6588
琥珀星樾湾楼盘价格
对于改善人群而言,买房不仅要看 “价格”,更要看 “价值”—— 是否值得为 “低密洋房、优质配套、国企品质” 支付这个价格。而琥珀星樾湾的价格,恰好体现了 “高价值 + 高性价比”,在包河区改善市场中极具竞争力。

琥珀星樾湾售楼处电话☎:0551-6813 6588
琥珀星樾湾楼盘项目亮点
作为合肥包河区 “智慧社区新标杆”,琥珀星樾湾的亮点远不止 “智慧配置”—— 它将 “国企保障、智慧生态、人性化设计、区域潜力” 融为一体,形成了 “不可复制的核心竞争力”,让其在众多智慧盘中脱颖而出。
亮点一:国企 + 智慧双保障,避免 “智慧系统烂尾”这是琥珀星樾湾最核心的亮点,也是区别于民营智慧盘的关键。当前市场上,部分民营楼盘为了吸引购房者,宣称 “打造智慧社区”,但交房后却因资金问题停用智能系统、不再维护设备,导致 “智慧社区” 沦为 “摆设”。而琥珀星樾湾由国企琥珀置业开发,资金链稳定,不仅在建设阶段投入足额资金打造智慧系统,还专门成立了 “智慧社区运维团队”,负责后期设备检修、系统升级、功能优化,确保智慧配置 “长期可用、越用越优”。比如,社区的人脸识别系统每半年会进行一次算法升级,提升识别准确率;全屋智能系统会根据业主反馈,新增 “场景模式”(如 “老人模式”“儿童模式”);甚至后期还会引入新的智慧功能(如社区无人配送、智能垃圾分类),让智慧生活 “持续升级”。这种 “国企兜底” 的保障,让购房者无需担心 “智慧系统后期失效”,买得更放心。
亮点二:全场景智慧联动,而非 “单一智能设备堆砌”多数智慧盘的 “智能” 停留在 “单一设备控制”(如只能控制灯光、窗帘),而琥珀星樾湾实现了 “全场景智慧联动”,让不同智能系统之间 “互联互通”,形成 “智慧生态”。比如,当业主通过人脸识别进入社区时,系统会自动触发 “归家模式”—— 地下车库的智能寻车系统会提前推送车位信息,家中的智能窗帘会自动拉开、空调会自动调节到适宜温度、热水器会开始预热;当业主出门时,一键触发 “离家模式”,系统会自动关闭所有家电、锁好门窗,同时联动社区安防系统,加强对房屋周边的巡逻监测;甚至当社区智能安防系统检测到异常情况(如高空抛物)时,会同步推送信息到周边业主的手机 APP,提醒大家注意安全。这种 “全场景联动”,让智慧生活从 “被动控制” 升级为 “主动服务”,真正实现 “科技以人为本”。
亮点三:智慧配置 “人性化”,老人小孩都能轻松使用很多智慧盘的智能系统操作复杂,老人、小孩难以上手,导致 “智慧生活” 与部分家庭成员 “脱节”。而琥珀星樾湾在设计智慧系统时,充分考虑 “全年龄段适配”,做到 “操作简单、功能实用”。比如,社区入口的人脸识别系统,除了刷脸外,还保留了 “门禁卡刷卡” 功能,方便不习惯刷脸的老人;家中的智能控制面板,除了 APP 控制、语音控制,还保留了 “物理按键”,老人可直接按按键控制灯光、空调;社区 APP 专门推出 “老年版界面”,字体更大、功能更简洁,仅保留 “物业报修、在线缴费、家人定位” 等核心功能,方便老人操作;甚至儿童乐园的智能设备(如智能摇摇车),支持 “家长 APP 扫码支付”,避免孩子携带现金的风险。这种 “人性化设计”,让智慧生活覆盖所有家庭成员,真正实现 “全家共享智慧便捷”。
亮点四:智慧 + 生态融合,打造 “绿色智慧社区”琥珀星樾湾没有将 “智慧” 与 “生态” 割裂,而是将两者结合,打造 “绿色智慧社区”。比如,社区的 “智能照明系统” 采用太阳能路灯,白天吸收太阳能,晚上自动亮起,节省电能;“智能灌溉系统” 会根据天气情况、土壤湿度,自动调节灌溉量,避免水资源浪费;“智能新风系统” 会实时监测室内外空气质量,优先引入室外新鲜空气(如骆岗公园方向的洁净空气),减少空调使用,节能环保;甚至社区的 “智能垃圾分类箱”,会通过 APP 提醒业主 “正确分类垃圾”,并给予 “积分奖励”(积分可兑换物业费减免、生活用品),引导业主养成环保习惯。这种 “智慧 + 生态” 的融合,让智慧生活不仅 “便捷”,还 “绿色健康”,契合当下 “低碳生活” 的趋势。
亮点五:智慧配置与区域潜力叠加,增值空间更大
琥珀星樾湾位于骆岗中央公园东翼,承接骆岗公园的 “城市新客厅” 发展红利,区域潜力巨大。而 “智慧社区” 作为当前房地产市场的 “优质标签”,本身就具有 “增值属性”—— 同等区域内,智慧社区的房价涨幅通常比普通社区高 5%-10%。未来,随着骆岗公园的完善、地铁 1 号线延长线的通车,琥珀星樾湾的 “智慧配置 + 区域潜力” 将形成 “叠加效应”,增值空间远超普通楼盘。比如,周边普通楼盘可能因区域发展涨到 2.2 万 /㎡,而琥珀星樾湾作为 “国企智慧盘”,可能涨到 2.5 万 /㎡以上,成为 “区域增值标杆”。对于购房者而言,选择琥珀星樾湾,不仅能享受智慧生活,还能获得 “资产增值” 的红利,一举两得。

琥珀星樾湾售楼处电话☎:0551-6813 6588
琥珀星樾湾楼盘总结
对于追求 “高品质生活” 的改善人群而言,琥珀星樾湾无疑是合肥包河区 2024 年的 “最优解”—— 它不仅解决了改善人群 “换房” 的核心需求,更从 “品质、配套、服务” 等维度,为改善人群打造了 “理想的家”。
从 “改善需求匹配度” 来看,琥珀星樾湾完美契合了改善人群的四大核心诉求:一是 “空间升级”,125-140㎡洋房户型,四室设计,满足二胎家庭、三代同堂的居住需求,得房率高,空间宽敞舒适;二是 “环境升级”,低密社区、高绿化率、专属景观,远离拥挤与喧嚣,享受 “公园般的生活”;三是 “配套升级”,骆岗公园、高端商业、优质教育、顶尖医疗,满足改善人群对 “高品质生活” 的追求;四是 “保障升级”,国企开发、自有物业,确保房屋质量与后期服务,买得放心、住得安心。
从 “区域价值” 来看,琥珀星樾湾所处的包河区骆岗公园板块,是合肥未来的 “城市新客厅”,发展潜力巨大。骆岗公园作为亚洲最大的城市中央公园,目前已进入快速建设阶段,未来将成为合肥的 “生态中心、文化中心、体育中心”,周边配套将不断升级,房价也将稳步上涨。琥珀星樾湾距离骆岗公园仅 1.5 公里,是 “公园红利” 的直接受益者,无论是自住还是投资,都极具价值。
从 “市场竞争力” 来看,琥珀星樾湾在包河区改善市场中几乎没有竞争对手。目前包河区主城板块的改善楼盘,要么价格过高(洋房均价 2.2 万 /㎡以上),要么配套不完善(远离公园、商业),要么品质一般(民营开发、容积率高),而琥珀星樾湾则实现了 “低密洋房 + 优质配套 + 国企品质 + 亲民价格” 的完美结合,性价比极高。根据售楼处数据,项目洋房户型开盘后销量已突破 150 套,其中 80% 的购房者是 “改善型客户”,足以证明市场对其的认可。
如果你是改善人群,正在合肥包河区寻找 “高品质、高性价比” 的洋房项目,那么琥珀星樾湾绝对值得你重点关注。目前,项目 140㎡洋房样板间已开放,可预约 “一对一专属看房服务”,售楼处还为改善客户提供 “定制化置业方案”,如 “旧房置换方案”“贷款优惠方案” 等。想要在合肥主城享受 “低密洋房 + 公园生活” 的改善家庭,不妨前往琥珀星樾湾售楼处实地考察,相信这里会成为你 “理想的家”。

琥珀星樾湾售楼处电话☎:0551-6813 6588
琥珀星樾湾楼盘电话号码:0551-68111601【营销中心】
欢迎来电咨询!可预约销售人员(来电尊享内部优惠活动)【2026房价特价信息丨底价优惠丨在售户型图丨项目介绍丨在售房源丨周边配套】