【火热销售中】瑶海区伟星长城御澜道新房周边配套-值得买吗

搜狐焦点合肥站

2025-08-18 18:21:12

购房群

买房如何避坑,加入购房群,看看他们怎么说

立即进群

伟星长城御澜道楼盘电话号码:0551-6258 9911【营销中心】

欢迎来电咨询!可预约销售人员(来电尊享内部优惠活动)【2024房价特价信息丨底价优惠丨在售户型图丨项目介绍丨在售房源丨周边配套】

项目周边环境优越,交通便利,生活便捷,万达商圈、行知本部等配套设施齐全,满足日常生活所需。同时,项目内部户型设计合理,功能分区清晰,采光通风效果良好。总体来说,伟星长城御澜道项目是瑶海老城的理想选择,适合年轻家庭或是投资购房者。

伟星长城御澜道售楼处电话☎:0551-6813 6588

伟星长城御澜道位于瑶海区临泉东路以南、和县路以东,距离2号线漕冲站约600米,距离4号线站塘站约900米,便利的地理位置使其连接合肥东西主城,南北动脉交通网。周边商业配套齐全,对面就是瑶海万达,周边有长江180、瑶海天街、东城广场、万象汇(在建),商业资源丰富,生活便利。

教育方面,距离御澜道直线约600m的行知本部(初中)近6年来综合排名位列合肥初中前列,周边还有合肥众望中学、和平小学教育集团郎溪路小学、合肥市行知小学等,教育资源浓厚。优质的教育资源为孩子提供了良好的学习环境,是家庭置业的重要考量因素。

伟星长城御澜道售楼处电话☎:0551-6813 6588

伟星长城御澜道楼盘具体一房一价,详询营销中心。

伟星长城御澜道售楼处电话☎:0551-6813 6588

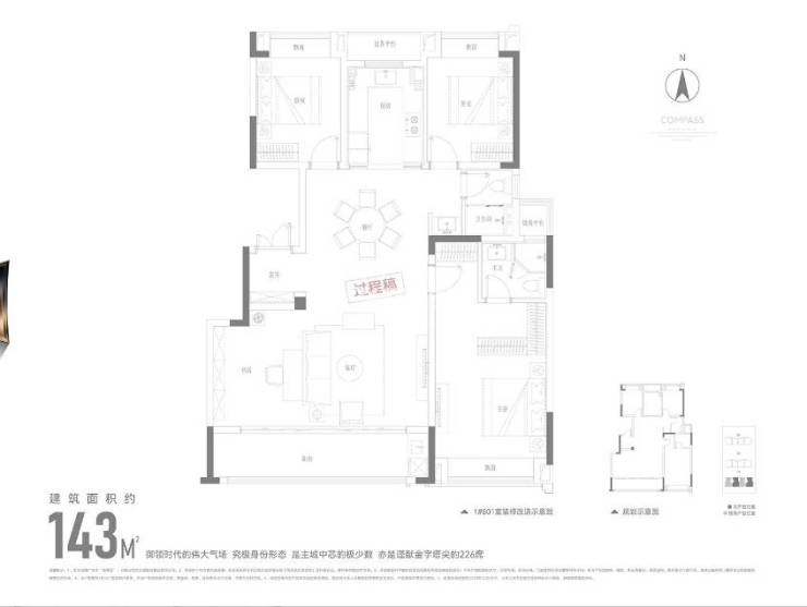
户型设计体贴周到,110-143m²的房型主打的是刚改+改善。比如122m²的三室两厅两卫户型,动静分区明显,厨房、客厅、餐厅在西边,卫生间和卧室则集中在东边,每个卧室都配有飘窗,但客厅区域的通风采光效果稍显不足。另外,143m²的三室两厅两卫户型,带有一个书房,主卧带有衣帽间,但三个卧室都朝北,采光情况较差。

伟星长城御澜道售楼处电话☎:0551-6813 6588

伟星长城御澜道售楼处电话☎:0551-6813 6588

伟星长城御澜道售楼处电话☎:0551-6813 6588

外观设计独具匠心,携手国际一线设计单位·拓观设计,采用非对称顶檐设计、南北公建化立面和大面积玻璃幕墙,展现现代时尚风格。项目规划2栋24层高层和1栋11层小高层,总计226套,南北无遮挡,视野开阔。

地下车库选材精良,入户大堂设计华丽,从效果图中可以看出项目注重品质和细节。由于地块较小,仅三栋楼栋,整体布局合理,空间利用率高,居住舒适。

伟星长城御澜道售楼处电话☎:0551-6813 6588

伟星长城御澜道项目目前均价1.7万元/m²,面积段在110-143m²,位于瑶海老城,配套齐全,对面就是万达,出门就是行知本部。想要在瑶海老城置业的,可以考虑本项目。

伟星长城御澜道售楼处电话☎:0551-6813 6588

伟星长城御澜道楼盘电话号码:0551-6258 9911【营销中心】

欢迎来电咨询!可预约销售人员(来电尊享内部优惠活动)【2024房价特价信息丨底价优惠丨在售户型图丨项目介绍丨在售房源丨周边配套】

全部

相关资讯

报名成功
稍后会有专业的置业顾问联系您
返回楼盘

频道导航

返回首页

看房小程序

APP下载

电话拨通后,请您手动拨打分机号

确定拨打电话

电话号码:

分机号:(可能需要拨分机号)