合肥招商奥体公园【合肥2024】丨降价了吗→底价优惠→楼盘

搜狐焦点合肥站

2024-11-14 10:32:59

购房群

买房如何避坑,加入购房群,看看他们怎么说

立即进群

招商奥体公园楼盘电话号码:0551-68111601【营销中心】

欢迎来电咨询!可预约销售人员(来电尊享内部优惠活动)【2024房价特价信息丨底价优惠丨在售户型图丨项目介绍丨在售房源丨周边配套】

2021年,招商选择在合肥新站区少荃湖板块布局,打造了合肥首个百万方奥体TOD体育综合体。项目位于东方大道与卧龙湖路交叉口,包括多个业态,如少荃体育中心、长空公园、花园里商街、奥体上城等,为居民提供了丰富多彩的生活方式。

项目周边有多条城市主干道穿行而过,如东方大道、文忠路、淮海大道、包公大道等,构建了立体TOD交通网络。项目紧邻地铁4号线始发站东方大道站,地铁3号线和规划中的9号线也穿行于项目周边区域,出行便捷。项目内规划有约3万方活力荟商业街区,满足居民日常购物、餐饮、娱乐等多元化需求,此外还紧邻鸿盛商业广场、百大商业广场等大型商业综合体。作为奥体TOD综合体项目,招商奥体公园还规划有体育主题商业配套,将运动、休闲、购物融为一体,为居民提供独特的消费体验。

教育资源方面,附近有竹溪小学、康桥国际学校、168分校陶冲湖东校区;项目周边医疗配套完善,有安徽医科大学第四附属医院、京东方数字医院等三甲医院;还有奥体公园、少荃湖湿地公园、陶冲湖公园等为居民提供了休闲娱乐的好去处。价格方面,招商奥体公园颇具性价比,目前均价在1.7万/㎡左右。对比周边二手房,绿地柏仕公园1.3万/㎡、旭辉公园府1.5万/㎡;周边新房乐富强湖光秋色花园1.4万/㎡,国贸璟原1.7万/㎡。

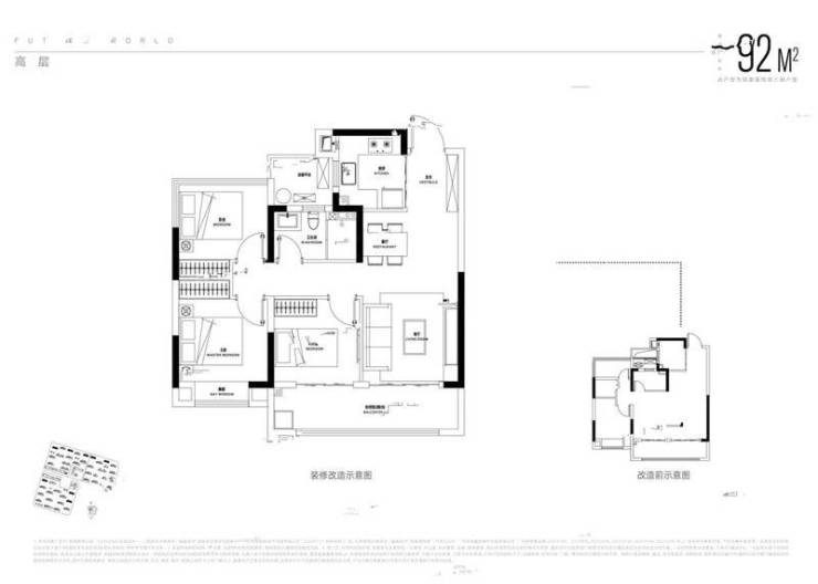
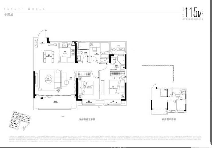
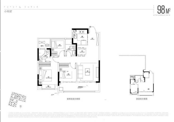
精心设计的户型是招商奥体公园的亮点之一。主打刚需小户型,主力户型面积介于89-119㎡之间,包括二居室和三居室,满足不同购房者的需求。其中,92㎡的三室两厅一卫户型设计独具匠心,南北通透的布局让采光和通风效果更佳。主卧带有一个飘窗,卫生间干湿分离,客厅和餐厅一体化设计,空间更显宽敞。客厅与阳台相连,阳台空间较大,可打造出一个开放性空间,让居住者尽情享受户外阳光和清新空气。

在合肥新房市场中,招商奥体公园项目的售价也较为合理。目前部分户型均价在1.35万/㎡至2万/㎡之间,性价比较高,让购房者觉得物有所值。这样的价格策略,吸引了更多的购房者选择入住,加速了项目的销售进程。同时也为购房者提供了更多选择的空间,让他们可以更好地满足自己对于居住环境的需求。

招商奥体公园楼盘配套齐全,性价比高,有想在新站区购房置业的网友,可以重点关注招商奥体公园项目。

在合肥新房市场竞争激烈的背景下,招商奥体公园项目凭借其独特的定位和优势,成为了一匹刚需“黑马”,取得了不错的成绩。其综合性的规划和便利的交通配套,为购房者提供了舒适便利的居住环境,成为了新站区的一颗“明珠”。

总的来说,招商奥体公园项目在合肥新房市场上的表现可圈可点。其独特的综合性规划,便捷的交通配套以及相对亲民的售价,使其成为了购房者们眼中的“香饽饽”。未来,随着项目的不断完善和周边配套的逐步完善,相信招商奥体公园会继续吸引更多购房者的关注和青睐,成为合肥新站区的璀璨明珠。

招商奥体公园楼盘电话号码:0551-68111601【营销中心】

欢迎来电咨询!可预约销售人员(来电尊享内部优惠活动)【2024房价特价信息丨底价优惠丨在售户型图丨项目介绍丨在售房源丨周边配套】

全部
报名成功
稍后会有专业的置业顾问联系您
返回楼盘

频道导航

返回首页

看房小程序

APP下载

电话拨通后,请您手动拨打分机号

确定拨打电话

电话号码:

分机号:(可能需要拨分机号)