越秀中寰天悦楼盘怎么样-学区

搜狐焦点合肥站

2025-07-04 05:19:00

购房群

买房如何避坑,加入购房群,看看他们怎么说

立即进群

越秀中寰天悦楼盘,更多项目详情请拨打越秀中寰天悦营销中心电话:0551-6258 9911【营销中心】

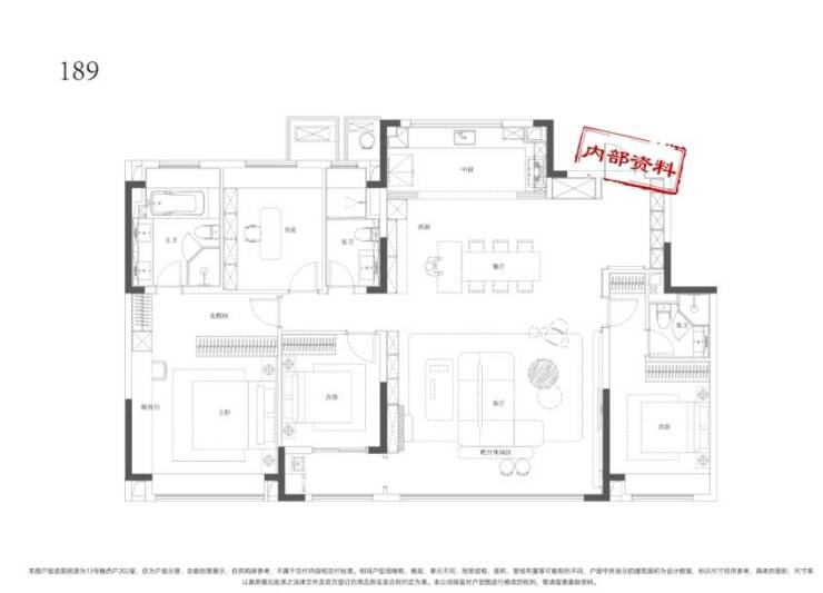
越秀中寰天悦是越秀打造的纯改善型住宅,位于马鞍山路板块,小高大平层,户型面积段在149-189㎡,均价约为24800元/㎡,精装交付。188㎡的明星产品约在500万上下,二环内性价比很高。149㎡的四居室产品空间利用度高,适合关注改善型住宅的购房者。

越秀中寰天悦售楼处电话☎:0551-6813 6588

越秀中寰天悦项目位于包河区望江东路与至德路交叉口东北角,紧邻包河主城区,处于二环内,周边拥有淝河板块醇熟的配套设施,交通便捷。项目周边主要交通道路有东二环路、望江东路等,同时还有多条地铁线路经过,包括1号线(朱岗站)、4号线(尧渡河路站)、6号线(在建),出行非常方便。此外,项目周边教育资源丰富,包括距离两公里左右的包河区外国语第二小学和三公里左右的合肥第四十八中望湖校区。四十八中师资雄厚,教育水平优秀,学区房备受瞩目。在淝河板块内,医疗资源也十分充足,拥有市三院、市二院等多家三甲医院,项目三公里范围内还有安徽省立儿童医院本院。此外,项目毗邻骆岗公园,周边还有中央公园科创CBD资源,以及包公园、望湖公园等。

越秀中寰天悦售楼处电话☎:0551-6813 6588

149㎡的产品在越秀中寰天悦项目中也做了四居室的布局,空间利用度极高。标准四室两厅两卫的设计,端厅布局使活动区域更宽敞,主卧套房设计,可设衣帽间,提升居住舒适度。而188㎡的户型则是项目的亮点,入户十字玄关设计增加私密性,卧房布局合理,主次卧均设计为套房,主卧衣帽间和卫生间空间宽敞,符合改善型住宅需求。客厅活动区域15米端厅设计,南边设有落地窗,采光通风效果佳。

越秀中寰天悦售楼处电话☎:0551-6813 6588

越秀中寰天悦售楼处电话☎:0551-6813 6588

越秀中寰天悦售楼处电话☎:0551-6813 6588

越秀中寰天悦楼盘具体一房一价,详询营销中心。

越秀中寰天悦售楼处电话☎:0551-6813 6588

越秀中寰天悦即将加推15#,主力户型为149㎡,总价从350万起步。合肥高端改善市场蓬勃发展,各区不断有高端改善的新盘入市。包河区中海悦府是计容新政规则调整后首个入市楼盘,得房率高达90%,已开启验资,即将首开;淝河板块的甘棠路TOD棠悦风华也已启动验资,预计9月中旬首开;伟星万科星遇光年即将加推23#,主力户型约102-175㎡。除少量小户型外,中海悦府、越秀中寰天悦都是纯改善盘。

越秀中寰天悦售楼处电话☎:0551-6813 6588

越秀中寰天悦作为一处纯改善型住宅,不仅在户型设计上独具特色,而且周边配套完善,教育资源丰富,性价比也相对较高。在合肥高端改善市场蓬勃发展的背景下,越秀中寰天悦提供了一个不错的选择,值得购房者关注和考虑。

越秀中寰天悦售楼处电话☎:0551-6813 6588

越秀中寰天悦楼盘,更多项目详情请拨打越秀中寰天悦营销中心电话:0551-6258 9911【营销中心】

全部

相关资讯

报名成功
稍后会有专业的置业顾问联系您
返回楼盘

频道导航

返回首页

看房小程序

APP下载

电话拨通后,请您手动拨打分机号

确定拨打电话

电话号码:

分机号:(可能需要拨分机号)