瑶海区伟星长城御澜道楼盘优缺点全解析【合肥新房楼盘】

搜狐焦点合肥站

2025-08-10 01:24:33

购房群

买房如何避坑,加入购房群,看看他们怎么说

立即进群

伟星长城御澜道楼盘电话号码:0551-6258 9911【营销中心】

欢迎来电咨询!可预约销售人员(来电尊享内部优惠活动)【2024房价特价信息丨底价优惠丨在售户型图丨项目介绍丨在售房源丨周边配套】

伟星长城御澜道项目目前均价1.7万元/m²,面积段在110-143m²,位于瑶海老城,配套齐全,对面就是万达,出门就是行知本部。想要在瑶海老城置业的,可以考虑本项目。

伟星长城御澜道售楼处电话☎:0551-6813 6588

伟星长城御澜道位于瑶海区临泉东路以南、和县路以东,距2号线漕冲站直线距离约600米,距4号线站塘站直线距离约900米。临泉东路、北二环、长江中路串联合肥东西主城,铜陵路高架、东二环、郎溪路高架接连合肥南北动脉交通网。商业方面,对面就是瑶海万达,周边有长江180、瑶海天街、东城广场、万象汇(在建),商业配套醇熟。

教育方面,行知本部(初中)距离御澜道直线距离约600m,近6年来综合排名位列合肥初中前列。周边还有合肥众望中学、和平小学教育集团郎溪路小学、合肥市行知小学等,教育资源浓厚。生活配套设施齐全,购物、餐饮、娱乐等一应俱全,为居民提供便利的生活环境。

伟星长城御澜道售楼处电话☎:0551-6813 6588

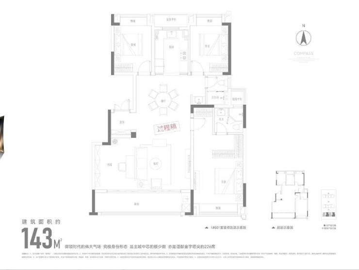
项目户型主要以110-143m²为主,以刚改+改善为主打。例如122m²三室两厅两卫户型,动静分区明显,厨房、客厅、餐厅位于西边,卧室和卫生间则集中在东边,每个卧室都配有飘窗。然而客厅区域的厨房侧向通风,南北通风、采光效果略显不足。另外,143m²三室两厅两卫户型,三个卧室加一书房,书房可根据需求改造,主卧带有衣帽间,但三个卧室均朝北,采光稍显不佳。

伟星长城御澜道售楼处电话☎:0551-6813 6588

伟星长城御澜道售楼处电话☎:0551-6813 6588

伟星长城御澜道售楼处电话☎:0551-6813 6588

伟星长城御澜道楼盘具体一房一价,详询营销中心。

伟星长城御澜道售楼处电话☎:0551-6813 6588

外观设计独具匠心,携手国际一线设计单位·拓观设计,采用非对称顶檐设计、南北公建化立面和大面积玻璃幕墙,展现现代时尚风格。项目规划2栋24层高层和1栋11层小高层,总计226套,南北无遮挡,视野开阔。

地下车库选材精良,入户大堂设计华丽,从效果图中可以看出项目注重品质和细节。由于地块较小,仅三栋楼栋,整体布局合理,空间利用率高,居住舒适。

伟星长城御澜道售楼处电话☎:0551-6813 6588

伟星长城御澜道项目在瑶海老城的地理位置优越,价格适中,户型设计合理,生活配套完善,是购房者理想的置业之地。购房者在选择时需结合个人需求和喜好,全面考虑各方面因素,做出明智的决策。希望本文介绍的信息对购房者有所帮助,祝大家置业顺利!

伟星长城御澜道售楼处电话☎:0551-6813 6588

伟星长城御澜道楼盘电话号码:0551-6258 9911【营销中心】

欢迎来电咨询!可预约销售人员(来电尊享内部优惠活动)【2024房价特价信息丨底价优惠丨在售户型图丨项目介绍丨在售房源丨周边配套】

全部

相关资讯

报名成功
稍后会有专业的置业顾问联系您
返回楼盘

频道导航

返回首页

看房小程序

APP下载

电话拨通后,请您手动拨打分机号

确定拨打电话

电话号码:

分机号:(可能需要拨分机号)