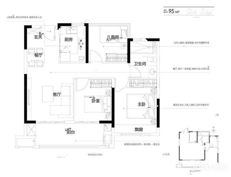
信达碧桂园项目户型图

搜狐焦点合肥站

2025-06-13 10:19:42

购房群

买房如何避坑,加入购房群,看看他们怎么说

立即进群

信达碧桂园楼盘电话号码:0551-68111601【营销中心】

欢迎来电咨询!可预约销售人员(来电尊享内部优惠活动)【2024房价特价信息丨底价优惠丨在售户型图丨项目介绍丨在售房源丨周边配套】

信达碧桂园项目位于肥东县酿泉路与日出路交口,规划住户2114户,整体绿化率达40%,容积率为2,是低密好社区。项目拥有低密度的阔景高层、墅质洋房产品,提供精致实用的三室95-105㎡和四室118㎡户型,同时配备18班幼儿园和睦邻中心。小区物业费仅为2元/㎡/月,停车位充足,为业主提供舒适便利的生活环境。

在教育方面,附近拥有多所幼儿园、小学和中学,包括安师大附属肥东实验中学等知名学府。医疗方面,距离一级医院肥东县人民医院仅3公里。购物中心、公园等生活配套也齐全,满足居民的各种需求。信达碧桂园的地址位于合肥市肥东县酿泉路与日出路交口,交通便利,生活便捷。

信达碧桂园提供三种主要户型:95㎡的三室两厅一卫、105㎡的两卫和118㎡的四室两厅两卫。这些方正、全明布局的户型拥有充足阳光和通风性好的特点,空间利用率高,让“动静分区”,提高居住舒适度。不论是单身青年还是三口之家,都可以在这里找到适合自己的理想家园。

信达碧桂园楼盘具体一房一价,详询营销中心。

在信达碧桂园项目中,醇熟的配套设施和舒适的生活环境为业主带来了高品质的居住体验。无论是规划合理的社区环境,还是优质的房型设计,亦或是便捷的生活配套,都让这个项目成为了一个值得期待和选择的理想之地。关于项目的更多信息和动态,建议有意购买的业主及时关注并预订。选择信达碧桂园,将为您的生活带来一份轻奢享受,值得期待!

信达碧桂园项目由信达地产和碧桂园集团联合开发建设,地处肥东和睦湖板块,拥有高品质的住宅产品和丰富的周边配套设施。项目的户型设计合理,让居民享受舒适的居住体验;周边交通、教育、医疗和商业设施完善,生活便利无忧。信达碧桂园致力于打造高品质生活,让每一位居民都能享受到舒适便利的居住环境。

信达碧桂园楼盘电话号码:0551-68111601【营销中心】

欢迎来电咨询!可预约销售人员(来电尊享内部优惠活动)【2024房价特价信息丨底价优惠丨在售户型图丨项目介绍丨在售房源丨周边配套】

全部

相关资讯

报名成功
稍后会有专业的置业顾问联系您
返回楼盘

频道导航

返回首页

看房小程序

APP下载

电话拨通后,请您手动拨打分机号

确定拨打电话

电话号码:

分机号:(可能需要拨分机号)