招商奥体公园楼盘价格多少钱一平

搜狐焦点合肥站

2025-08-12 00:42:35

购房群

买房如何避坑,加入购房群,看看他们怎么说

立即进群

招商奥体公园

招商奥体公园营销中心电话:0551-6258 9911【已认证】

招商奥体公园售楼处电话:0551-6258 9911【已认证】

招商奥体公园展示中心电话:0551-6258 9911【已认证】

招商奥体公园作为合肥新站区的首个百万方TOD体育综合体,为居民提供了丰富多彩的生活方式和一站式生活体验。其品质住宅和央企信赖的背书,让购房者能够放心选择,享受高品质的人居环境。选择招商奥体公园,就是选择了一个舒适便利、优质生活的家园。

招商奥体公园售楼处电话☎:0551-6813 6588

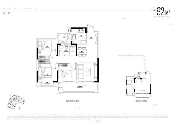
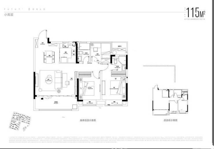
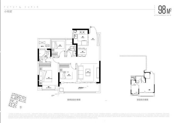
项目采用5S智慧管理服务体系,包括智能出入系统、儿童智慧呵护系统、环境智慧管理系统等,全方位保障社区的安全性和便利性。此外,项目主打刚需小户型,主力户型面积介于89-119㎡之间,满足不同购房者的需求。其中,92㎡的户型设计南北通透,采光和通风良好,空间设计合理,符合现代居住需求。

招商奥体公园售楼处电话☎:0551-6813 6588

招商奥体公园售楼处电话☎:0551-6813 6588

招商奥体公园售楼处电话☎:0551-6813 6588

招商奥体公园售楼处电话☎:0551-6813 6588

招商奥体公园售楼处电话☎:0551-6813 6588

招商奥体公园楼盘具有多项独特的项目亮点,最显著的是其作为TOD综合体的特点。该项目涵盖了六大业态,包括室内万人体育场馆、地铁上盖长空公园以及活力荟商业街区等。自带的“活力荟”商业街区面积约2.5万平方米,而西侧则规划有一个14万平方米的大型商业综合体,为居民的日常生活提供了便利的购物和休闲选择。

交通方面,招商奥体公园楼盘紧邻地铁4号线的始发站“综保区站”,并设有“奥体巴士”接驳服务,便于居民前往城市核心区域。此外,周边主要干道有“三纵三横”的布局(包括新蚌埠路、铜陵北路和东方大道等),极大地提升了交通的便利性。

在教育资源方面,招商奥体公园周边配备了合肥168陶冲湖校区(初中部)、竹溪小学少荃校区以及自建幼儿园,为家庭提供了优质的教育选择。医疗配套方面,附近有安徽医科大学第一附属医院北区和京东方医院(数字化医院),为居民的健康保障提供了有力支持。

生态环境上,项目邻近少荃湖湿地公园和二十埠河生态廊道,提供了良好的自然景观与生态环境,适合家庭生活与休闲活动。此外,该项目还规划有更多的绿地和休闲场所,让居民在繁忙的生活中享有宁静与舒适。

招商奥体公园售楼处电话☎:0551-6813 6588

总的来说,招商奥体公园在合肥新房市场中表现突出,成为了刚需购房者关注的焦点。优越的地理位置、合适的价格、丰富的业态配套以及智能化的管理服务,使这个项目备受青睐。对于想要在新站区购房的购房者来说,招商奥体公园无疑是一个不错的选择。

招商奥体公园售楼处电话☎:0551-6813 6588

招商奥体公园位于合肥新站奥体板块内,是一个占地超过百万平方米的大型住宅项目,汇集了六种不同业态。项目内包括室内万人体育场馆、地铁上盖长空公园和活力荟TOD商业体等,形成了一个综合性的生活圈。无论是运动爱好者、商务人士还是家庭购房者,这里都能找到适合自己的生活方式。

招商奥体公园售楼处电话☎:0551-6813 6588

价格方面,招商奥体公园均价在1.7万/㎡左右,相比周边其他项目具有一定的性价比优势。项目主打刚需小户型,主力户型面积介于89-119㎡之间,包括二居室和三居室,满足不同购房者的需求。部分四室户型面积达到143㎡,也可供选择。其中,92㎡的户型三室两厅一卫,南北通透设计,采光和通风良好,空间利用较为合理,适合家庭居住。

招商奥体公园售楼处电话☎:0551-6813 6588

合肥(招商奥体公园)☎☎:0551-6258 9911【官方认证】

全部
报名成功
稍后会有专业的置业顾问联系您
返回楼盘

频道导航

返回首页

看房小程序

APP下载

电话拨通后,请您手动拨打分机号

确定拨打电话

电话号码:

分机号:(可能需要拨分机号)