和睦湖伟星城楼盘视频信息 - 安居客

搜狐焦点合肥站

2025-07-11 01:09:11

购房群

买房如何避坑,加入购房群,看看他们怎么说

立即进群

伟星城楼盘电话号码:0551-68111601【营销中心】

欢迎来电咨询!可预约销售人员(来电尊享内部优惠活动)【2024房价特价信息丨底价优惠丨在售户型图丨项目介绍丨在售房源丨周边配套】

伟星地产在合肥的发展迅速,尤其是在肥东和睦湖板块的伟星城项目,更是其在肥东的一大亮点。伟星城位于东部新城核心区,项目占地272.33亩,规划了37栋住宅楼,共计2596套房源,多为15-18层的小高层,毛坯交付。交通、教育、医疗等配套设施齐备,居住环境优美,是一个理想的人居地带。

伟星城售楼处电话☎:0551-6813 6588

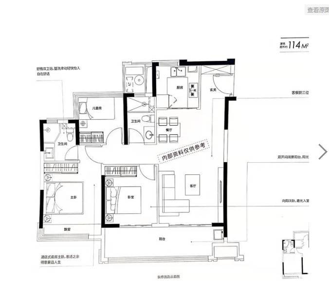
伟星城周边的教育资源丰富,东城实验小学、肥东一中等优质学校为孩子们提供了良好的学习环境。项目在售的二期小高层户型面积从95平方米到142平方米不等,均价约为12000元/平方米,为追求舒适居住体验的购房者提供了一个值得考虑的选择。无论是家庭居住还是投资置业,伟星城都是一个不可多得的优质选择。

伟星城售楼处电话☎:0551-6813 6588

伟星城的房源面积范围广泛,从95平方米到142平方米不等,可满足刚需、改善不同客群置业居住需求。户型布局合理,方正,多开间朝南,独立玄关,南北大尺度通厅,空间感强,且南北通透,采光与通风效果良好,居住舒适,满足多元生活需求。

伟星城售楼处电话☎:0551-6813 6588

伟星城售楼处电话☎:0551-6813 6588

伟星城售楼处电话☎:0551-6813 6588

伟星城楼盘具体一房一价,详询营销中心。

伟星城售楼处电话☎:0551-6813 6588

伟星城的社区空间布局设计亮点颇多,留出了大面积的中庭空间,采用高级灰质感的设计,打造出酒店式的归家体验。立体化的景观中轴贯穿其中,营造出具有江南韵味的社区园林。社区内部配备了丰富的休闲设施,为居民提供便利和舒适的生活环境。从硬件设施到对细节的精雕细琢,伟星地产都体现了对高品质生活的追求。

伟星城售楼处电话☎:0551-6813 6588

伟星城项目位于合肥肥东和睦湖板块,地理位置优越,交通便捷,周边配套完善,居住环境优美。项目的社区空间布局设计亮点颇多,配备了丰富的休闲设施,为居民提供便利和舒适的生活环境。无论是从硬件设施还是周边教育资源,伟星城都是一个不可多得的优质选择。

伟星城售楼处电话☎:0551-6813 6588

伟星城楼盘电话号码:0551-68111601【营销中心】

欢迎来电咨询!可预约销售人员(来电尊享内部优惠活动)【2024房价特价信息丨底价优惠丨在售户型图丨项目介绍丨在售房源丨周边配套】

全部
报名成功
稍后会有专业的置业顾问联系您
返回楼盘

频道导航

返回首页

看房小程序

APP下载

电话拨通后,请您手动拨打分机号

确定拨打电话

电话号码:

分机号:(可能需要拨分机号)