新站区招商奥体公园项目最新相关信息

搜狐焦点合肥站

2025-06-10 08:50:03

购房群

买房如何避坑,加入购房群,看看他们怎么说

立即进群

招商奥体公园楼盘电话号码:0551-6258 9911【营销中心】

欢迎来电咨询!可预约销售人员(来电尊享内部优惠活动)

【2024房价特价信息丨底价优惠丨在售户型图丨项目介绍丨在售房源丨周边配套】

招商奥体公园是合肥新站奥体板块内的一个大型住宅项目,总面积超过百万平方米,集六种不同业态于一体。这里包括了室内万人体育场馆、9万平方米的地铁上盖长空公园,以及2.5万平方米的活力荟TOD商业体等,形成了一个综合性的生活圈。项目内规划有高层、小高层和洋房等多种住宅类型,以满足不同购房者的需求。所有住宅均为精装交付,且绿化率较高,项目紧邻地铁4号线,多条主要道路交汇,兼顾了舒适居住与出行便捷

招商奥体公园售楼处电话☎:0551-6813 6588

交通上,项目紧邻地铁4号线始发站综保区站地铁口,奥体巴士同步4号线,串联城市与社区,交通便捷,通达全城。三纵三横的干道交汇也为项目出行提供更多选择。商业配套丰富,项目自带约2.5万方活力荟商业街区,西侧还规划有14万方大型商业综合体,北侧5万方星级酒店已封顶,南侧有8万方的弘盛商业广场,共同构成项目强大商业支撑。

项目一期二期配套有合肥市168陶冲湖校区、伦先小学和自建幼儿园;三期四期五期配套有合肥168陶冲湖校区、竹溪小学少荃校区和自建幼儿园,为业主提供优质教育资源。周边医疗资源丰富,包括安徽医科大学第一附属医院北区和京东方医院,为业主的健康保驾护航。少荃湖湿地公园、二十埠河生态廊道等自然景观,也为业主提供休闲娱乐的好去处。

招商奥体公园售楼处电话☎:0551-6813 6588

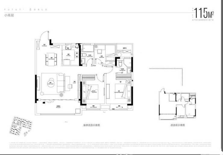
招商奥体公园主打刚需小户型,主力户型面积介于89-119㎡之间,包括二居室和三居室,满足不同购房者的需求。其中,92㎡的户型三室两厅一卫,南北通透的设计,采光和通风良好,主卧带有一个飘窗,卫生间干湿分离,客厅和餐厅一体化设计,空间宽敞。客厅和旁边的卧室阳台相连,阳台空间较大,可打造出一个开放性空间。招商奥体公园的多样户型选择,满足了购房者对于不同空间需求和生活方式的追求。

招商奥体公园售楼处电话☎:0551-6813 6588

招商奥体公园售楼处电话☎:0551-6813 6588

招商奥体公园售楼处电话☎:0551-6813 6588

招商奥体公园售楼处电话☎:0551-6813 6588

招商奥体公园售楼处电话☎:0551-6813 6588

招商奥体公园一、二期已经交付,楼盘品质有目共睹,央企招商品牌值得信赖。近期在售的一、二期现房,三、四期准现房,户型面积在88-115m²。作为一线品牌央企,招商在合肥拥有多年深耕发展的经验,带来了多座高品质人居作品。居民可以放心选择招商奥体公园,享受舒适宜居的生活。

招商奥体公园售楼处电话☎:0551-6813 6588

新站区是合肥市区产证的价格洼地,适合刚需人群,对于刚需客户来说,新站区的房价比较友好。

招商奥体公园售楼处电话☎:0551-6813 6588

招商奥体公园作为合肥新站奥体板块内的重要住宅项目,不仅拥有丰富的生活配套和优质的居住环境,还为购房者提供了多种户型选择和优惠政策。无论是商业购物还是医疗教育资源,招商奥体公园都能满足居民的各种需求,成为合肥新时尚的引领者。

招商奥体公园售楼处电话☎:0551-6813 6588

招商奥体公园售楼处电话0551-6258 9911【营销中心】

欢迎预约品鉴:(官方网站)售楼处:0551-6258 9911【营销中心】

温馨提示:网上售楼中心〢预约可享内部优惠〢匠心钜制-恭迎品鉴〢

全部
报名成功
稍后会有专业的置业顾问联系您
返回楼盘

频道导航

返回首页

看房小程序

APP下载

电话拨通后,请您手动拨打分机号

确定拨打电话

电话号码:

分机号:(可能需要拨分机号)