新站区招商奥体公园项目户型图-学区

搜狐焦点合肥站

2025-06-05 10:02:35

购房群

买房如何避坑,加入购房群,看看他们怎么说

立即进群

招商奥体公园售楼处电话☎:0551-6258 9911

合肥招商奥体公园售楼处电话☎:0551-6258 9911

售楼电话┇——☎0551-6258 9911——┇来电详细解答

温馨提示:提前预约销售人员看房,感谢您对售楼处的配合!

⚠免责声明:请尊重他人的努力和智慧,避免未经授权的复制或引用。

项目一、二期已经交付,楼盘品质有目共睹,央企招商品牌值得信赖。近期在售的招商奥体公园一、二期现房,三、四期准现房,户型面积在88-115m²。作为一线品牌央企,招商在合肥拥有多年深耕发展的经验,带来了多座高品质人居作品。

招商奥体公园售楼处电话☎:0551-6813 6588

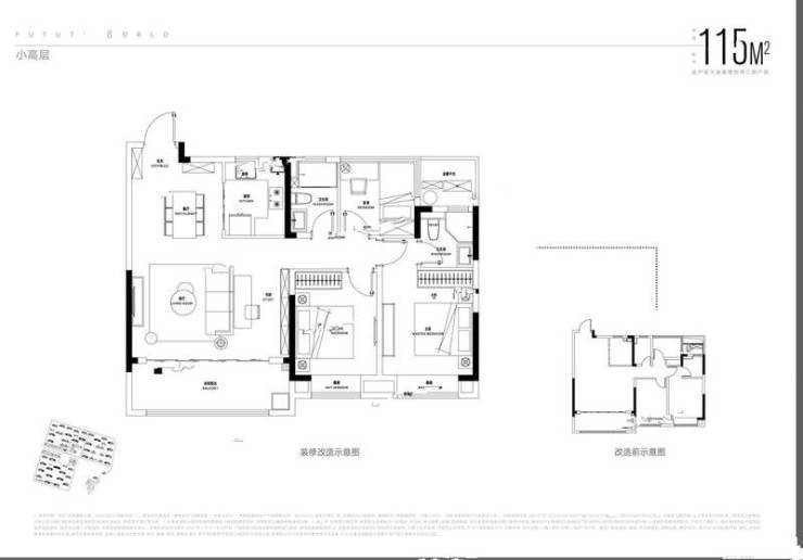
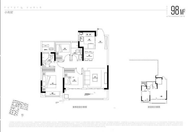
招商奥体公园主打刚需小户型,主力户型面积介于89-119㎡之间,包括二居室和三居室,满足不同购房者的需求。其中,92㎡的户型三室两厅一卫,南北通透的设计,采光和通风良好,主卧带有一个飘窗,卫生间干湿分离,客厅和餐厅一体化设计,空间宽敞。客厅和旁边的卧室阳台相连,阳台空间较大,可打造出一个开放性空间。招商奥体公园的多样户型选择,满足了购房者对于不同空间需求和生活方式的追求。这样的设计不仅满足了购房者的实际需求,也为他们提供了舒适宜居的居住环境。

招商奥体公园售楼处电话☎:0551-6813 6588

招商奥体公园售楼处电话☎:0551-6813 6588

招商奥体公园售楼处电话☎:0551-6813 6588

招商奥体公园售楼处电话☎:0551-6813 6588

商奥体公园售楼处电话☎:0551-6813 6588

招商奥体公园楼盘配套齐全,性价比高,有想在新站区购房置业的网友,可以重点关注招商奥体公园项目。

招商奥体公园售楼处电话☎:0551-6813 6588

总的来说,招商奥体公园在合肥新房市场中表现突出,成为了刚需购房者关注的焦点。优越的地理位置、合适的价格、丰富的业态配套以及智能化的管理服务,使这个项目备受青睐。对于想要在新站区购房的购房者来说,招商奥体公园无疑是一个不错的选择。

招商奥体公园售楼处电话☎:0551-6813 6588

招商奥体公园项目位于新站少荃湖板块,具体地址为卧龙湖路与东方大道交叉路口西南侧。项目周边有多条城市主干道穿行而过,如东方大道、文忠路、淮海大道、包公大道等,构建了立体TOD交通网络。项目紧邻地铁4号线始发站东方大道站,地铁3号线和规划中的9号线也穿行于项目周边区域,出行便捷。项目内规划有约3万方活力荟商业街区,满足居民日常购物、餐饮、娱乐等多元化需求。此外,附近还有多所学校和医院,以及多个公园供居民休闲娱乐。

招商奥体公园售楼处电话☎:0551-6813 6588

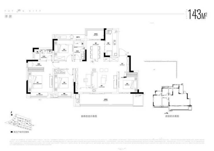
招商奥体公园规划了高层、小高层和洋房等多种住宅类型,以满足不同购房者的需求。所有住宅均为精装交付,绿化率较高,项目紧邻地铁4号线和多条主要道路,为居民提供了便捷的出行条件,同时也保障了舒适的居住环境。

招商奥体公园拥有完善的商业配套,包括自带活力荟商业街区、大型商业综合体、星级酒店和商业广场。周边教育资源丰富,涵盖幼儿园到中学的各个阶段。医疗资源充沛,三级甲等医院和数字化医院均在周边。自然景观环绕,提供了休闲娱乐的好去处。此外,招商奥体公园的户型多样,主打建面89-109㎡,目前还享有8折优惠和购房返现的活动,为购房者提供了更多的优惠和选择。

招商奥体公园售楼处电话☎:0551-6813 6588

招商奥体公园楼盘电话号码:0551-6258 9911【营销中心】

欢迎来电咨询!可预约销售人员(来电尊享内部优惠活动)

【2024房价特价信息丨底价优惠丨在售户型图丨项目介绍丨在售房源丨周边配套】

全部
报名成功
稍后会有专业的置业顾问联系您
返回楼盘

频道导航

返回首页

看房小程序

APP下载

电话拨通后,请您手动拨打分机号

确定拨打电话

电话号码:

分机号:(可能需要拨分机号)