合肥越秀中寰天悦楼盘怎么样

搜狐焦点合肥站

2024-09-05 18:25:23

购房群

买房如何避坑,加入购房群,看看他们怎么说

立即进群

越秀中寰天悦楼盘不错的,详询:0551-68136588。

越秀中寰天悦项目位于包河区马鞍山路板块,总价约350万起,主力户型为149㎡。周边配套醇熟,教育资源优质,是二环内性价比很高的选择,特别适合关注改善型住宅的购房者。

越秀中寰天悦项目位于包河区望江东路与至德路交叉口东北角,紧邻包河主城区,二环内,享有淝河板块醇熟配套,周边交通路网完善。周边有城市主干道东二环路、望江东路等,轨道交通包括1号线、4号线、6号线,在建中。项目周边教育资源丰富,有包河区外国语第二小学、合肥第四十八中望湖校区等优质学府。医疗资源充足,三甲医院市三院、市二院近在咫尺,项目还毗邻骆岗公园,享有中央公园科创CBD资源。商业配套丰富,大润发超市、龙虾美食街、包河万象汇等近在咫尺,满足日常生活所需。

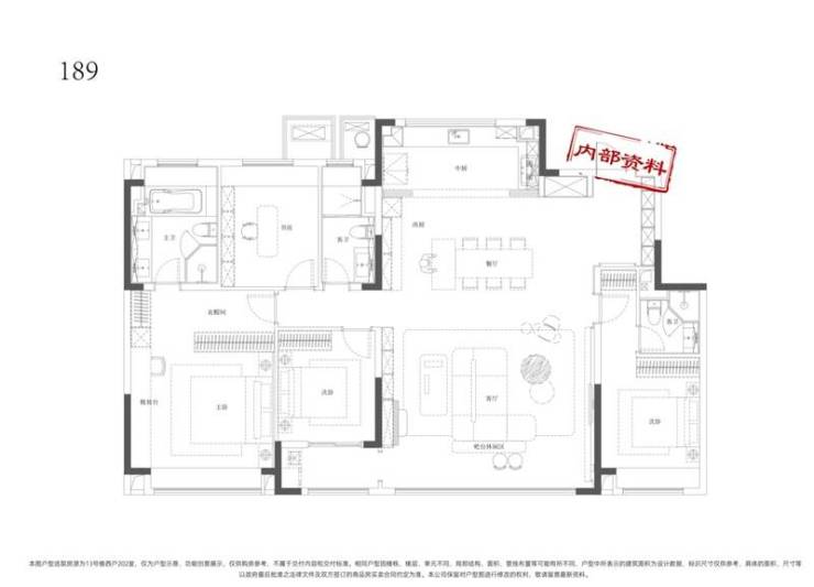
越秀中寰天悦项目总占地面积达31906.83㎡,建筑面积为70195.02㎡,容积率2.20,绿化率40%,规划建设424户,户型面积段在149-189㎡,以四居室为主,均价约27390元/㎡。项目内设有约1300㎡的独立下沉式会所,拥有各种丰富的活动区域,包括品茗区、宴客厅、棋牌室、小型KTV等,为业主提供休闲娱乐的好去处。此外,小区各楼栋的一楼大厅也打造成了主题空间,覆盖儿童、女性、长者、运动、社交功能,满足家庭成员的不同需求。儿童主题区

越秀中寰天悦作为越秀打造的纯改善型住宅项目,不仅地理位置优越,周边配套齐全,更是以精致大气的小高大平层设计和丰富多样的活动空间吸引了购房者的关注。对于希望升级改善居住环境的购房者来说,越秀中寰天悦无疑是一个值得考虑的选择。

越秀中寰天悦楼盘不错的,详询:0551-68136588。

全部

相关资讯

报名成功
稍后会有专业的置业顾问联系您
返回楼盘

频道导航

返回首页

看房小程序

APP下载

电话拨通后,请您手动拨打分机号

确定拨打电话

电话号码:

分机号:(可能需要拨分机号)