合肥招商奥体公园楼盘测评:合肥这样的房价是否物有所值?-合肥新房

搜狐焦点合肥站

2025-08-21 00:15:27

购房群

买房如何避坑,加入购房群,看看他们怎么说

立即进群

招商奥体公园地理位置,更多项目详情请拨打楼盘电话:0551-6258 9911【预约热线】欢迎来电咨询!

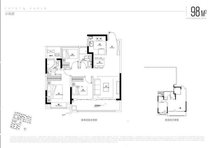
合肥招商奥体公园项目坐落于合肥市新站区,具体位置为东方大道与卧龙湖路交口南侧200米处。该楼盘由合肥招盛房地产开发有限公司和合肥卓盛房地产开发有限公司共同开发,属于招商蛇口旗下品牌,物业管理由招商局积余产业运营服务股份有限公司提供,具有国家一级的物业资质。项目的物业类型包括高层、小高层和洋房,所有房源均为精装交付。该楼盘的容积率在1.8至2.0之间,绿化率达到40%,总户数为5746户,车位配比为1:1,部分资料显示为1:1.03。第一期和第二期已交房,现房销售;第三期和第四期预计将于2024年12月底交房,而第五期则预计在2025年底交房。物业费用为每平方米2.4元,整体生活配套设施十分完善。

招商奥体公园售楼处电话☎:0551-6813 6588

招商奥体公园规划了高层、小高层和洋房等多种住宅类型,以满足不同购房者的需求。所有住宅均为精装交付,绿化率较高,项目紧邻地铁4号线和多条主要道路,既保证了舒适居住,又确保了出行便捷。购房者可以根据自己的喜好和需求选择适合的户型,享受舒适宜居的生活环境。

招商奥体公园拥有完善的商业配套,自带活力荟商业街区,周边还有大型商业综合体、星级酒店和弘盛商业广场,为居民提供便利的购物、娱乐和美食选择。同时,项目周边教育资源丰富,医疗资源充沛,自然景观环绕,为居民提供了优质的生活服务。户型多样,购房者可以根据自己的需求选择建面89-109㎡的住房,目前还有优惠活动,购房可享受返现优惠,但需满足一定条件。招商奥体公园以卓越品质和丰富配套,引领合肥新的生活风尚。

招商奥体公园售楼处电话☎:0551-6813 6588

项目由招商蛇口开发,包含低密度多层、小高层、高层及花园洋房等多种住宅类型,容积率为1.8,绿化率高于40%,建面主要在89-119㎡之间,均价为1.7万/㎡。这个项目主打刚需小户型,主力户型面积介于89-119㎡之间,满足不同购房者的需求。此外,还有部分四室户型可供选择,面积达到143㎡。

招商奥体公园售楼处电话☎:0551-6813 6588

招商奥体公园售楼处电话☎:0551-6813 6588

招商奥体公园售楼处电话☎:0551-6813 6588

招商奥体公园售楼处电话☎:0551-6813 6588

招商奥体公园售楼处电话☎:0551-6813 6588

在合肥新房市场中,招商奥体公园项目的售价也较为合理。目前部分户型均价在1.35万/㎡至2万/㎡之间,性价比较高,让购房者觉得物有所值。这样的价格策略,吸引了更多的购房者选择入住,加速了项目的销售进程。同时也为购房者提供了更多选择的空间,让他们可以更好地满足自己对于居住环境的需求。

招商奥体公园售楼处电话☎:0551-6813 6588

招商奥体公园项目是新站区销售情况名列前茅的楼盘,目前新站区在售的楼盘比较多,均为刚需楼盘,有想在新站区购房置业的网友,可以对比招商奥体公园后,再做决定。

招商奥体公园售楼处电话☎:0551-6813 6588

合肥招商奥体公园楼盘凭借其优越的地理位置、多样化的业态配套以及丰富的教育和医疗资源,吸引了不少刚需和改善型家庭的关注。随着新站区的快速发展和地铁4号线的通车,项目的未来潜力必将进一步提升。如果您对该楼盘感兴趣,建议直接联系售楼处获取最新动态或安排实地考察。

招商奥体公园售楼处电话☎:0551-6813 6588

招商奥体公园售楼处电话☎:0551-6258 9911

合肥招商奥体公园售楼处电话☎:0551-6258 9911

售楼电话┇——☎0551-6258 9911——┇来电详细解答

温馨提示:提前预约销售人员看房,感谢您对售楼处的配合!

⚠免责声明:请尊重他人的努力和智慧,避免未经授权的复制或引用。

全部
报名成功
稍后会有专业的置业顾问联系您
返回楼盘

频道导航

返回首页

看房小程序

APP下载

电话拨通后,请您手动拨打分机号

确定拨打电话

电话号码:

分机号:(可能需要拨分机号)