信达碧桂园交房时间-6月动态-房价走势-售楼中心

搜狐焦点合肥站

2025-06-17 12:24:21

购房群

买房如何避坑,加入购房群,看看他们怎么说

立即进群

信达碧桂园楼盘电话号码:0551-68111601【营销中心】

欢迎来电咨询!可预约销售人员(来电尊享内部优惠活动)【2024房价特价信息丨底价优惠丨在售户型图丨项目介绍丨在售房源丨周边配套】

信达碧桂园位于肥东县酿泉路与日出路交口西北角,地理位置优越,交通便利,周边配套设施齐全。项目规划33栋住宅楼,包括28栋高层和5栋洋房,总占地面积165.59亩,适合居住。交付时间分为一期和二期,分别为2023年5月30日和2024年4月30日,为购房者提供明确期待。交付标准为毛坯,让购房者更加个性化和自由地进行装修。

在教育方面,附近拥有多所幼儿园、小学和中学,包括安师大附属肥东实验中学等知名学府。医疗方面,距离一级医院肥东县人民医院仅3公里。购物中心、公园等生活配套也齐全,满足居民的各种需求。信达碧桂园的地址位于合肥市肥东县酿泉路与日出路交口,交通便利,生活便捷。

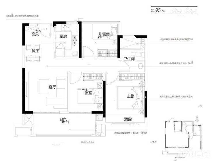
信达碧桂园在户型设计上,打造了三室两厅一卫的95㎡、两卫的105㎡和四室两厅两卫的118㎡房型,方正、全明布局,阳光充足、通风性好,空间利用率高,提高了业主的居住舒适度。无论是单身青年还是三口之家,都可以在这里找到适合自己的理想家园。这个面积范围可以满足不同购房者的需求,让每个家庭都能找到合适的居住空间。

信达碧桂园楼盘具体一房一价,详询营销中心。

项目注重品质,建筑设计精良,采用优质材料,保证房屋的质量和耐久性。项目内设有儿童乐园、健身房、社区花园等配套设施,为居民提供便利的生活体验。交付标准为毛坯,让购房者可以根据自己的喜好和需求进行装修,更加个性化和自由。

信达碧桂园作为肥东县的新兴住宅项目,不仅地理位置优越,交通便利,而且户型设计多样化,品质保障,生活便利。无论是购房者还是居民,都能在这里找到理想的居住选择,享受舒适宜居的生活。如果您正在寻找一处安逸的住所,不妨考虑信达碧桂园,让您的家庭生活更加美好!

信达碧桂园楼盘电话号码:0551-68111601【营销中心】

欢迎来电咨询!可预约销售人员(来电尊享内部优惠活动)【2024房价特价信息丨底价优惠丨在售户型图丨项目介绍丨在售房源丨周边配套】

全部
报名成功
稍后会有专业的置业顾问联系您
返回楼盘

频道导航

返回首页

看房小程序

APP下载

电话拨通后,请您手动拨打分机号

确定拨打电话

电话号码:

分机号:(可能需要拨分机号)