瑶海区伟星长城御澜道丨进阶人生,品质之选!臻席位递减中!

搜狐焦点合肥站

2025-09-12 20:23:28

购房群

买房如何避坑,加入购房群,看看他们怎么说

立即进群

伟星长城御澜道楼盘电话号码:0551-6258 9911【营销中心】

欢迎来电咨询!可预约销售人员(来电尊享内部优惠活动)【2024房价特价信息丨底价优惠丨在售户型图丨项目介绍丨在售房源丨周边配套】

110-143m²的户型设计主打的是刚改+改善的风格。以122m²三室两厅两卫户型为例,动静分区明显,厨房、客厅、餐厅在西边,卫生间和卧室集中在东边,每个卧室都配有飘窗。然而,客厅区域的厨房侧向通风,南北通风、采光效果相对较差。

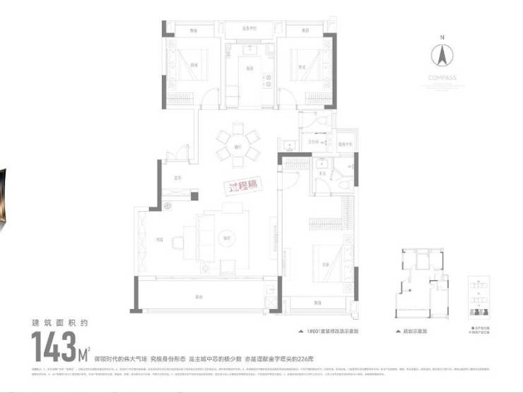
另外,143m²三室两厅两卫户型中,主卧配有衣帽间,同时有一个书房可以根据自己的需求改造。然而,三个卧室都朝北,导致采光不太理想。因此,在选择户型时,需要根据个人喜好和需求进行权衡考虑。

伟星长城御澜道售楼处电话☎:0551-6813 6588

伟星长城御澜道售楼处电话☎:0551-6813 6588

伟星长城御澜道售楼处电话☎:0551-6813 6588

从交通的角度来看,御澜道项目距离2号线漕冲站直线距离约600米,距离4号线站塘站直线距离约900米,便利前往合肥市内各个角落。同时,临泉东路、北二环、长江中路串联合肥东西主城,铜陵路高架、东二环、郎溪路高架接连合肥南北动脉交通网,出行更加便捷。

在商业配套方面,对面就是瑶海万达,周边还有长江180、瑶海天街、东城广场、万象汇等商业中心,购物、餐饮、娱乐等生活需求都能得到满足。购房者可以尽情享受便利的生活方式,尽情体验城市繁华的氛围。

在教育资源方面,御澜道项目周边拥有众多优质教育资源。行知本部(初中)距离御澜道直线距离约600m,这所学校近6年来综合排名位列合肥初中前列,为孩子提供优质的学习环境。此外,周边还有合肥众望中学、和平小学教育集团郎溪路小学、合肥市行知小学等,教育资源浓厚,为孩子的成长提供了良好的保障。

伟星长城御澜道售楼处电话☎:0551-6813 6588

伟星长城御澜道楼盘具体一房一价,详询营销中心。

伟星长城御澜道售楼处电话☎:0551-6813 6588

项目户型110-143m²,主打的是刚改+改善。例如122m²户型,三室两厅两卫,动静分区明显,厨房、客厅、餐厅在西边,卫生间和卧室在东边,每个卧室都配有飘窗。但客厅区域的厨房侧向通风,南北通风、采光效果稍差。143m²户型则为三室两厅两卫,含一个书房,主卧带衣帽间,但三个卧室朝北,采光稍欠。

伟星长城御澜道售楼处电话☎:0551-6813 6588

伟星长城御澜道项目位于瑶海区临泉东路以南、和县路以东,是来自瑶海老城区的“袖珍地块”。目前项目的均价为1.7万元/m²,面积段在110-143m²,是在瑶海老城置业的不错选择。地处老城核心位置,交通便利,商业配套完善,教育资源丰富。

伟星长城御澜道售楼处电话☎:0551-6813 6588

拟建2栋24层高层和1栋11层小高层,共计226套。虽然地块较小,但仍采取了纵向摆放的方式,南北无遮挡,确保了居住环境的采光和通风。外立面设计携手国际一线设计单位·拓观设计,采用非对称顶檐设计、南北公建化立面和大面积玻璃幕窗,打造出现代简约的建筑风格。

地下车库也是精心选材,入户大堂设计华丽,从效果图中可以看出项目注重品质和细节。整体来看,伟星长城御澜道项目不仅地理位置优越,周边配套完善,建筑设计精致,而且注重居住体验,是理想的居住选择。

伟星长城御澜道售楼处电话☎:0551-6813 6588

伟星长城御澜道楼盘电话号码:0551-6258 9911【营销中心】

欢迎来电咨询!可预约销售人员(来电尊享内部优惠活动)【2024房价特价信息丨底价优惠丨在售户型图丨项目介绍丨在售房源丨周边配套】

全部
报名成功
稍后会有专业的置业顾问联系您
返回楼盘

频道导航

返回首页

看房小程序

APP下载

电话拨通后,请您手动拨打分机号

确定拨打电话

电话号码:

分机号:(可能需要拨分机号)