招商奥体公园【合肥房价早知道】

搜狐焦点合肥站

2025-07-03 03:46:08

购房群

买房如何避坑,加入购房群,看看他们怎么说

立即进群

招商奥体公园楼盘,更多项目详情请拨打招商奥体公园营销中心电话:0551-6258 9911【营销中心】

招商奥体公园项目位于新站区,地处新站少荃湖板块,具体位于东方大道与卧龙湖路交叉口,是央企招商的项目,拥有雄厚的实力和历史,是国内房企行内的领军品牌。招商奥体公园是一座奥体TOD综合体,打造了城市生长共同体,包括奥体中心、体育公园、活力商业和全龄智慧社区等四大业态。项目兑现速度迅速,一期首开住宅已成功交付,体育中心也正在运营,展现了招商品牌的信誉和实力。

招商奥体公园售楼处电话☎:0551-6813 6588

交通上,项目紧邻地铁4号线始发站综保区站地铁口,奥体巴士同步4号线,串联城市与社区,交通便捷,通达全城。三纵三横的干道交汇也为项目出行提供更多选择。商业配套丰富,项目自带约2.5万方活力荟商业街区,西侧还规划有14万方大型商业综合体,北侧5万方星级酒店已封顶,南侧有8万方的弘盛商业广场,共同构成项目强大商业支撑。

项目一期二期配套有合肥市168陶冲湖校区、伦先小学和自建幼儿园;三期四期五期配套有合肥168陶冲湖校区、竹溪小学少荃校区和自建幼儿园,为业主提供优质教育资源。周边医疗资源丰富,包括安徽医科大学第一附属医院北区和京东方医院,为业主的健康保驾护航。少荃湖湿地公园、二十埠河生态廊道等自然景观,也为业主提供休闲娱乐的好去处。

招商奥体公园售楼处电话☎:0551-6813 6588

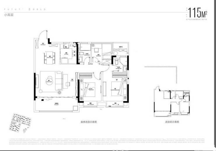
招商奥体公园主打刚需小户型,主力户型面积介于89-119㎡之间,包括二居室和三居室,满足不同购房者的需求。其中,92㎡的户型三室两厅一卫,南北通透的设计,采光和通风良好,主卧带有一个飘窗,卫生间干湿分离,客厅和餐厅一体化设计,空间宽敞。客厅和旁边的卧室阳台相连,阳台空间较大,可打造出一个开放性空间。招商奥体公园的多样户型选择,满足了购房者对于不同空间需求和生活方式的追求。

招商奥体公园售楼处电话☎:0551-6813 6588

招商奥体公园售楼处电话☎:0551-6813 6588

招商奥体公园售楼处电话☎:0551-6813 6588

招商奥体公园售楼处电话☎:0551-6813 6588

招商奥体公园售楼处电话☎:0551-6813 6588

近期在售的招商奥体公园一、二期现房,三、四期准现房,户型面积在88-115m²。作为一线品牌央企,招商在合肥拥有多年深耕发展的经验,带来了多座高品质人居作品。

招商奥体公园售楼处电话☎:0551-6813 6588

招商奥体公园的建设为合肥市民带来了全新的生活体验。项目内有丰富的商业设施和休闲娱乐场所,居民可以尽情享受购物、运动、休闲的乐趣。同时,项目周边交通便利,配套齐全,生活便捷。招商奥体公园的建成将进一步提升合肥新站区的居住品质,为居民打造一个宜居宜业的社区。选择招商奥体公园,就是选择高品质的生活。

招商奥体公园售楼处电话☎:0551-6813 6588

招商奥体公园作为新站区的一颗璀璨明珠,将为当地居民提供现代化的生活环境和便利,同时也为城市的发展注入新的活力。随着项目的建设和推进,相信招商奥体公园将成为新站区的地标建筑,吸引更多人的关注和青睐。

招商奥体公园售楼处电话☎:0551-6813 6588

招商奥体公园售楼处电话0551-6258 9911【营销中心】

欢迎预约品鉴:(官方网站)售楼处:0551-6258 9911【营销中心】

温馨提示:网上售楼中心〢预约可享内部优惠〢匠心钜制-恭迎品鉴〢

全部

相关资讯

报名成功
稍后会有专业的置业顾问联系您
返回楼盘

频道导航

返回首页

看房小程序

APP下载

电话拨通后,请您手动拨打分机号

确定拨打电话

电话号码:

分机号:(可能需要拨分机号)