招商奥体公园官方出品㊣官方售楼处发布@搜狐网发布

搜狐焦点合肥站

2025-06-03 09:20:41

购房群

买房如何避坑,加入购房群,看看他们怎么说

立即进群

招商奥体公园楼盘,更多项目详情请拨打招商奥体公园营销中心电话:0551-6258 9911【营销中心】

2021年,招商选择在合肥新站区少荃湖板块布局,打造了合肥首个百万方奥体TOD体育综合体。项目位于东方大道与卧龙湖路交叉口,包括多个业态,如少荃体育中心、长空公园、花园里商街、奥体上城等,为居民提供了丰富多彩的生活方式。

招商奥体公园售楼处电话☎:0551-6813 6588

交通上,项目紧邻地铁4号线始发站综保区站地铁口,奥体巴士同步4号线,串联城市与社区,交通便捷,通达全城。三纵三横的干道交汇也为项目出行提供更多选择。商业配套丰富,项目自带约2.5万方活力荟商业街区,西侧还规划有14万方大型商业综合体,北侧5万方星级酒店已封顶,南侧有8万方的弘盛商业广场,共同构成项目强大商业支撑。

项目一期二期配套有合肥市168陶冲湖校区、伦先小学和自建幼儿园;三期四期五期配套有合肥168陶冲湖校区、竹溪小学少荃校区和自建幼儿园,为业主提供优质教育资源。周边医疗资源丰富,包括安徽医科大学第一附属医院北区和京东方医院,为业主的健康保驾护航。少荃湖湿地公园、二十埠河生态廊道等自然景观,也为业主提供休闲娱乐的好去处。

招商奥体公园售楼处电话☎:0551-6813 6588

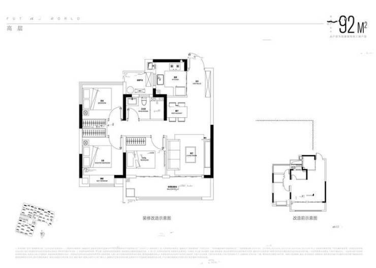
招商奥体公园主打刚需小户型,主力户型面积介于89-119㎡之间,包括二居室和三居室,满足不同购房者的需求。其中,92㎡的户型三室两厅一卫,南北通透的设计,采光和通风良好,主卧带有一个飘窗,卫生间干湿分离,客厅和餐厅一体化设计,空间宽敞。客厅和旁边的卧室阳台相连,阳台空间较大,可打造出一个开放性空间。招商奥体公园的多样户型选择,满足了购房者对于不同空间需求和生活方式的追求。

招商奥体公园售楼处电话☎:0551-6813 6588

招商奥体公园售楼处电话☎:0551-6813 6588

招商奥体公园售楼处电话☎:0551-6813 6588

招商奥体公园售楼处电话☎:0551-6813 6588

招商奥体公园售楼处电话☎:0551-6813 6588

招商奥体公园一、二期已经交付,楼盘品质有目共睹,央企招商品牌值得信赖。近期在售的一、二期现房,三、四期准现房,户型面积在88-115m²。作为一线品牌央企,招商在合肥拥有多年深耕发展的经验,带来了多座高品质人居作品。居民可以放心选择招商奥体公园,享受舒适宜居的生活。

招商奥体公园售楼处电话☎:0551-6813 6588

招商奥体公园作为合肥新站区的重要项目,以其丰富的业态和配套设施,以及便利的交通和周边资源,为居民提供了高品质的生活方式选择。随着项目的不断完善和发展,相信将会成为合肥地区的热门生活区域,吸引更多购房者的关注和青睐。

招商奥体公园售楼处电话☎:0551-6813 6588

招商奥体公园是合肥首座45万方奥体TOD综合体,集“体育中心、长空公园、TOD商业、智慧社区”四大业态于一体,为居民提供全方位的生活体验。项目采用5S智慧管理服务体系,保障社区的安全性和便利性。此外,项目设有5大主体架空层泛会所,覆盖各个年龄段的需求,提供丰富的休闲娱乐设施。招商奥体公园以其便捷交通、价格优势、多样户型选择和综合体验,吸引了众多购房者的关注和青睐,成为合肥新站区的一匹刚需“黑马”。

招商奥体公园售楼处电话☎:0551-6813 6588

招商奥体公园楼盘电话号码:0551-6258 9911【营销中心】

欢迎来电咨询!可预约销售人员(来电尊享内部优惠活动)

【2024房价特价信息丨详细解答丨在售户型图丨项目介绍丨在售房源丨周边配套】

全部

相关资讯

报名成功
稍后会有专业的置业顾问联系您
返回楼盘

频道导航

返回首页

看房小程序

APP下载

电话拨通后,请您手动拨打分机号

确定拨打电话

电话号码:

分机号:(可能需要拨分机号)