合肥伟星城楼盘怎么样-值得买吗

搜狐焦点合肥站

2025-08-06 02:56:20

购房群

买房如何避坑,加入购房群,看看他们怎么说

立即进群

伟星城楼盘电话号码:0551-68111601【营销中心】

欢迎来电咨询!可预约销售人员(来电尊享内部优惠活动)【2024房价特价信息丨底价优惠丨在售户型图丨项目介绍丨在售房源丨周边配套】

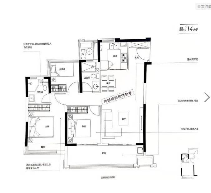
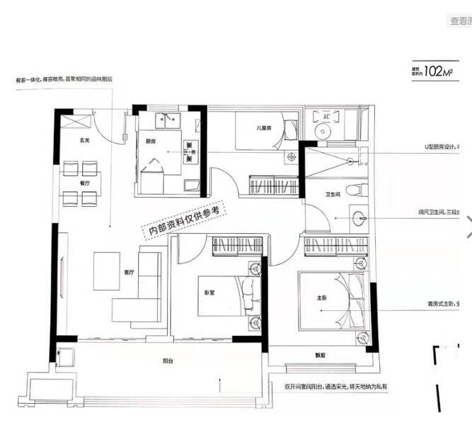
伟星地产在合肥房地产市场中的发展迅速,尤其是肥东和睦湖板块的伟星城项目,成为了其在这一地区的一大亮点。项目地理位置优越,交通便捷,周边配套完善,居住环境优美,是一个理想的人居地带。伟星城的设计亮点颇多,社区内部配备了丰富的休闲设施,为居民提供便利和舒适的生活环境。目前在售的二期小高层户型面积从95平方米到142平方米不等,均价约为12000元/平方米。

伟星城售楼处电话☎:0551-6813 6588

伟星城周边交通便利,地铁2号线延长线寓酒路站正在建设中,肥东高铁站和合肥绕城高速也在附近。此外,项目周边还有和睦湖湿地公园、肥东体育公园和约5万方的城市公园,为居民提供了宜居的自然环境。伟星城自带约18万方的城市级商业综合体和约4000方的社区配套,方便居民购物和日常生活。教育资源方面,伟星城自带18班幼儿园,肥东县实验学校、安师大附属肥东实验学校和肥东一中也在附近。医疗配套方面,伟星城靠近安徽医科大学附属医院东区,居民可以享受到高品质的医疗服务。

伟星城售楼处电话☎:0551-6813 6588

伟星城的住宅楼共计2596套房源,主要为15-18层的小高层,毛坯交付。户型面积涵盖95-142平方米,可满足不同客群的置业居住需求。户型布局合理,方正,多开间朝南,独立玄关,南北大尺度通厅,空间感强,南北通透,采光与通风效果优良,居住舒适,满足多元生活需求。另外,项目还规划了一个约14万平方米的城市级商业综合体,涵盖多种业态,为居民提供便利的购物和娱乐选择。

伟星城售楼处电话☎:0551-6813 6588

伟星城售楼处电话☎:0551-6813 6588

伟星城售楼处电话☎:0551-6813 6588

伟星城楼盘具体一房一价,详询营销中心。

伟星城售楼处电话☎:0551-6813 6588

伟星城的社区空间布局设计亮点颇多,留出了大面积的中庭空间,采用高级灰质感的设计,打造出酒店式的归家体验。立体化的景观中轴贯穿其中,营造出具有江南韵味的社区园林。社区内部配备了丰富的休闲设施,为居民提供便利和舒适的生活环境。从硬件设施到对细节的精雕细琢,伟星地产都体现了对高品质生活的追求。

伟星城售楼处电话☎:0551-6813 6588

伟星城作为合肥房地产市场的一大亮点,以其地理位置优越、交通便捷、环境优美、社区空间设计独具特色和周边教育资源丰富等优势,为购房者提供了一个高品质的生活选择。无论是追求舒适居住体验还是优质教育资源,伟星城都能满足您的需求,是一个理想的居住和投资地点。如果您正在寻找一个舒适宜居的新家,不妨考虑伟星城,让您的生活更加美好。

伟星城售楼处电话☎:0551-6813 6588

伟星城楼盘电话号码:0551-68111601【营销中心】

欢迎来电咨询!可预约销售人员(来电尊享内部优惠活动)【2024房价特价信息丨底价优惠丨在售户型图丨项目介绍丨在售房源丨周边配套】

全部
报名成功
稍后会有专业的置业顾问联系您
返回楼盘

频道导航

返回首页

看房小程序

APP下载

电话拨通后,请您手动拨打分机号

确定拨打电话

电话号码:

分机号:(可能需要拨分机号)