新站区招商奥体公园属于什么档次

搜狐焦点合肥站

2025-06-12 09:30:22

购房群

买房如何避坑,加入购房群,看看他们怎么说

立即进群

招商奥体公园地理位置,更多项目详情请拨打楼盘电话:0551-6258 9911【预约热线】欢迎来电咨询!

招商奥体公园是合肥新站奥体板块内的一个大型住宅项目,总面积超过百万平方米,集六种不同业态于一体。这里包括了室内万人体育场馆、9万平方米的地铁上盖长空公园,以及2.5万平方米的活力荟TOD商业体等,形成了一个综合性的生活圈。项目内规划有高层、小高层和洋房等多种住宅类型,以满足不同购房者的需求。所有住宅均为精装交付,且绿化率较高,项目紧邻地铁4号线,多条主要道路交汇,兼顾了舒适居住与出行便捷

招商奥体公园售楼处电话☎:0551-6813 6588

招商奥体公园规划了高层、小高层和洋房等多种住宅类型,以满足不同购房者的需求。所有住宅均为精装交付,绿化率较高,项目紧邻地铁4号线和多条主要道路,既保证了舒适居住,又确保了出行便捷。购房者可以根据自己的喜好和需求选择适合的户型,享受舒适宜居的生活环境。

招商奥体公园拥有完善的商业配套,自带活力荟商业街区,周边还有大型商业综合体、星级酒店和弘盛商业广场,为居民提供便利的购物、娱乐和美食选择。同时,项目周边教育资源丰富,医疗资源充沛,自然景观环绕,为居民提供了优质的生活服务。户型多样,购房者可以根据自己的需求选择建面89-109㎡的住房,目前还有优惠活动,购房可享受返现优惠,但需满足一定条件。招商奥体公园以卓越品质和丰富配套,引领合肥新的生活风尚。

招商奥体公园售楼处电话☎:0551-6813 6588

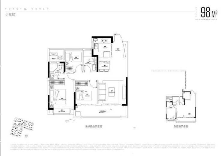
精心设计的户型是招商奥体公园的亮点之一。主打刚需小户型,主力户型面积介于89-119㎡之间,包括二居室和三居室,满足不同购房者的需求。其中,92㎡的三室两厅一卫户型设计独具匠心,南北通透的布局让采光和通风效果更佳。主卧带有一个飘窗,卫生间干湿分离,客厅和餐厅一体化设计,空间更显宽敞。客厅与阳台相连,阳台空间较大,可打造出一个开放性空间,让居住者尽情享受户外阳光和清新空气。

招商奥体公园售楼处电话☎:0551-6813 6588

招商奥体公园售楼处电话☎:0551-6813 6588

招商奥体公园售楼处电话☎:0551-6813 6588

招商奥体公园售楼处电话☎:0551-6813 6588

招商奥体公园售楼处电话☎:0551-6813 6588

近期在售的招商奥体公园一、二期现房,三、四期准现房,户型面积在88-115m²。作为一线品牌央企,招商在合肥拥有多年深耕发展的经验,带来了多座高品质人居作品。选择招商奥体公园,不仅能享受便利的生活配套和优越的交通条件,更能拥有一个品质生活的家园。

招商奥体公园售楼处电话☎:0551-6813 6588

招商奥体公园的建设为合肥市民带来了全新的生活体验。项目内有丰富的商业设施和休闲娱乐场所,居民可以尽情享受购物、运动、休闲的乐趣。同时,项目周边交通便利,配套齐全,生活便捷。招商奥体公园的建成将进一步提升合肥新站区的居住品质,为居民打造一个宜居宜业的社区。选择招商奥体公园,就是选择高品质的生活。

招商奥体公园售楼处电话☎:0551-6813 6588

招商奥体公园是合肥首座45万方奥体TOD综合体,集“体育中心、长空公园、TOD商业、智慧社区”四大业态于一体,为居民提供全方位的生活体验。项目采用5S智慧管理服务体系,保障社区的安全性和便利性。此外,项目设有5大主体架空层泛会所,覆盖各个年龄段的需求,提供丰富的休闲娱乐设施。招商奥体公园以其便捷交通、价格优势、多样户型选择和综合体验,吸引了众多购房者的关注和青睐,成为合肥新站区的一匹刚需“黑马”。

招商奥体公园售楼处电话☎:0551-6813 6588

招商奥体公园楼盘电话号码:0551-6258 9911【营销中心】

欢迎来电咨询!可预约销售人员(来电尊享内部优惠活动)

【2024房价特价信息丨底价优惠丨在售户型图丨项目介绍丨在售房源丨周边配套】

全部
报名成功
稍后会有专业的置业顾问联系您
返回楼盘

频道导航

返回首页

看房小程序

APP下载

电话拨通后,请您手动拨打分机号

确定拨打电话

电话号码:

分机号:(可能需要拨分机号)