庐阳区弘泰熙湖澜悦项目性价比怎么样

搜狐焦点合肥站

2024-04-25 09:29:35

购房群

买房如何避坑,加入购房群,看看他们怎么说

立即进群

庐阳区弘泰熙湖澜悦项目性价比高,均价2.1万-2.3万左右每平,部分房源单价1.85万起,总价230万起,具体一房一价。

弘泰熙湖澜悦,是庐阳区在售的新盘,由弘泰集团匠心打造,所地处的庐阳LY202303号地块,在2023年4月的合肥土拍中,由弘泰成功竞得,居住单价1090万元/亩,总价31970万元,住宅楼面价9083.29元/㎡,溢价率14.74%,地块具体位于庐阳区董铺路以南、合淮路以西,案名为弘泰熙湖澜悦,是弘泰在合肥打造的一座高端澜系人居作品。

营销咨询号码:0551-65566157

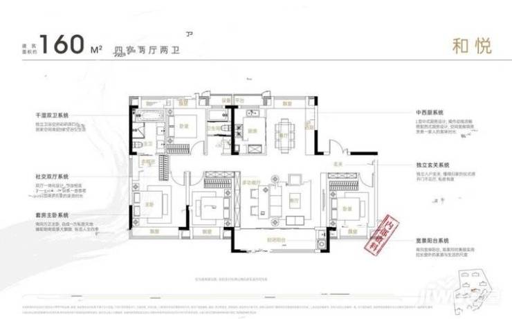
弘泰熙湖澜悦项目体量不大,共规划拟建7栋12-17F小高层住宅,共248户,户型面积段约131-141-160平,是一个相当纯粹的改善产品,而且项目品质也不错,例如层高3.15米,容积率仅1.8,42%的绿化率,还有外立面采用Super Flat光幕立面,大面积LOW-E玻璃,搭配"优雅灰、香槟金"的色彩体系,打造雅奢质感改善人居,户型布局上,同样有诸多亮点,例如大开间、大面宽、多南向、南北双窗景的设计,LDKG一体化客餐厅、三段式卫浴、主卧套房等匠心设计,功能齐全,满足多元化居住需求,也满足改善人群对生活品质的追求。

弘泰熙湖澜悦地处四里河北,紧邻四里河板块核芯区域,可近享四里河板块优质缤纷配套资源,例如万科广场、文一百年街、华润万象汇等繁华商圈,四里河路、西一环、西二环、地铁S1号线等便捷立体化交通,交通便捷发达,轻松畅达全城,项目西北侧还有规划12班幼儿园36班中小学,教育资源齐全,孩子上学无忧,另外项目周边还有双水公园、大房郢体育公园、半岛公园、庐州公园、董铺湖等丰富的自然资源,真正做到城市便捷繁华与自然生态宁静同时兼得,外部整体居住环境还是很不错的。

营销咨询号码:0551-65566157

目前弘泰熙湖澜悦在售中,前期加推房源持续在售中,四里河北,弘泰品牌房企,临湖而居的洋房住区,130-160平纯粹改善人居作品,万科品质物业,打造舒适品质住区,性价比高,值得入手,更多项目详情欢迎致电咨询。

全部
报名成功
稍后会有专业的置业顾问联系您
返回楼盘

频道导航

返回首页

看房小程序

APP下载

电话拨通后,请您手动拨打分机号

确定拨打电话

电话号码:

分机号:(可能需要拨分机号)