滨湖伟星滨江道【合肥2024首页】丨电话号码→售楼中心→合肥楼市

搜狐焦点合肥站

2024-10-23 14:17:02

购房群

买房如何避坑,加入购房群,看看他们怎么说

立即进群

伟星滨江道楼盘详情,详询:0551-68111210

伟星滨江道位于合肥滨湖环湖板块与金融板块交界处,具有得天独厚的地理位置优势。项目在售尾盘房源,户型面积108-125平方米,均价约2.4万每平,具体一房一价,是滨湖改善市场的不容错过的机会。项目周边配套成熟,交通便利,欢迎咨询了解更多项目详情。

在交通方面,项目距离1号线九联圩站约800米,同时临近徽州大道,出行便利。学区方面,根据2024年的学区划分公示方案,小学是师范附小第三小学贵阳路校区,中学是合肥市第四十八中学(阳光南校区)。而且距离都只有500米左右。商业配套方面,周边有合肥首创奥特莱斯、中海滨湖环宇天地等。另外,目前区域内二手房价格普遍下跌,新房价格高,主要是因为项目品质较为优秀。综上所述,伟星滨江道的尾盘房源备受瞩目,有着很大的投资潜力。

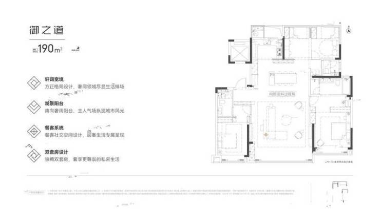
主力户型109-190m²,109m²为三室两厅一卫,南北通风,主卧配备大阳台,客厅和次卧的阳台相连,采光良好。而143m²户型为三室两厅两卫,主卧配卫生间,客餐厅相连,朝南的卧室都配了飘窗,整体面宽,空间布局合理。

伟星滨江道的优势在于地理位置优越,周边配套设施完善,交通便利等。项目位于合肥滨湖区,周边有公园绿地、幼儿园等,生活便利。同时,交通便捷,出行方便。然而,该项目的房价相对较高,毛坯交付需自行装修等缺点也需要购房者在选择时进行权衡,找到最适合自己的房源。

综上所述,伟星滨江道项目在产品质量和折扣力度上具有一定优势,但在位置和价格方面存在一定的不足。购房者在选择时需要综合考虑自身需求和项目特点,做出理性的决策。希望伟星滨江道项目能够不断改进,为购房者提供更好的居住体验。

伟星滨江道楼盘详情,详询:0551-68111210

全部

相关资讯

报名成功
稍后会有专业的置业顾问联系您
返回楼盘

频道导航

返回首页

看房小程序

APP下载

电话拨通后,请您手动拨打分机号

确定拨打电话

电话号码:

分机号:(可能需要拨分机号)