信达碧桂园楼盘怎么样-值得买吗

搜狐焦点合肥站

2025-08-07 02:52:22

购房群

买房如何避坑,加入购房群,看看他们怎么说

立即进群

信达碧桂园楼盘电话号码:0551-68111601【营销中心】

欢迎来电咨询!可预约销售人员(来电尊享内部优惠活动)【2024房价特价信息丨底价优惠丨在售户型图丨项目介绍丨在售房源丨周边配套】

信达碧桂园项目位于肥东县酿泉路与日出路交口西北角,地理位置优越,交通便利,周边配套设施齐全。规划33栋住宅楼,其中28栋高层,5栋洋房,占地面积165.59亩,是一个理想的居住选择,吸引众多购房者的目光。

信达碧桂园周边交通便利,紧邻在建地铁2号线东延线和肥东高铁站,有轨电车、裕溪路高架等多维交通出行方式,直达城市中心,确立区位优势。教育资源齐备,周边有多所幼儿园、小学和中学,为孩子提供良好的学习环境。医疗保障完善,距离一级医院仅2.7km,商业设施和生态环境也俱佳,为居民提供便利的生活条件。

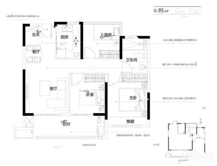
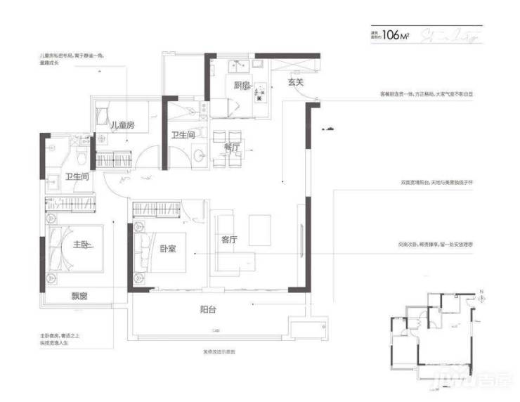
信达碧桂园的三室两厅一卫95㎡和105㎡、四室两厅两卫118㎡的房型,都采用方正、全明布局,阳光充足、通风性好。空间利用率高,实现“动静分区”,提高业主的居住舒适度。即使和老人同住,也能保持各自的私密空间,让每一位家庭成员都能享受到轻奢生活的乐趣。

信达碧桂园楼盘具体一房一价,详询营销中心。

项目注重品质,建筑设计精良,采用优质材料,保证房屋的质量和耐久性。项目内设有儿童乐园、健身房、社区花园等配套设施,为居民提供便利的生活体验。交付标准为毛坯,让购房者可以根据自己的喜好和需求进行装修,更加个性化和自由。

信达碧桂园作为一个新兴的住宅项目,不仅地理位置优越,交通便利,周边配套设施齐全,而且在户型设计和质量保障上都有着很高的水准,为购房者提供了一个理想的家园选择。无论是单身青年还是三口之家,都能在这里找到满足自己需求的房屋,享受轻奢生活。信达碧桂园,值得入手!

信达碧桂园楼盘电话号码:0551-68111601【营销中心】

欢迎来电咨询!可预约销售人员(来电尊享内部优惠活动)【2024房价特价信息丨底价优惠丨在售户型图丨项目介绍丨在售房源丨周边配套】

全部

相关资讯

报名成功
稍后会有专业的置业顾问联系您
返回楼盘

频道导航

返回首页

看房小程序

APP下载

电话拨通后,请您手动拨打分机号

确定拨打电话

电话号码:

分机号:(可能需要拨分机号)