越秀中寰天悦新房评价好不好,值得买吗?-搜狐网

搜狐焦点合肥站

2025-07-25 01:26:40

购房群

买房如何避坑,加入购房群,看看他们怎么说

立即进群

越秀中寰天悦地理位置,更多项目详情请拨打楼盘电话:0551-6258 9911【预约热线】欢迎来电咨询!

越秀中寰天悦项目位于包河区望江东路与至德路交叉口东北角,紧邻包河主城区,处于二环内,享有淝河板块醇熟的配套资源。项目周边交通便利,有城市主干道东二环路和望江东路,同时还有多条轨道交通线路在建或已经通车,包括1号线、4号线和6号线,出行十分方便。周边学校资源丰富,有包河区外国语第二小学和合肥第四十八中望湖校区,教育水平高,学区房备受瞩目。此外,项目周边还有多家三甲医院和公园,生活配套设施完善,让居民享受便利的生活。

越秀中寰天悦售楼处电话☎:0551-6813 6588

项目位于包河区望江东路与至德路交叉口东北角,紧邻包河主城区,处于二环内地段,享有淝河板块醇熟配套。周边交通便利,有城市主干道东二环路、望江东路等,同时也靠近轨道交通1号线、4号线和6号线,出行十分方便。教育资源方面,距离项目两公里左右就有包河区外国语第二小学,三公里左右是合肥第四十八中望湖校区,教学质量有保证。此外,淝河板块内还有多家三甲医院和公园,生活便利且环境优美。

除了周边的教育和医疗资源,越秀中寰天悦周边商业配套也相当完善。小区对面就有大型超市满足日常购物需求,三公里内还有知名美食街和购物中心,方便居民休闲娱乐和购物消费。总的来说,越秀中寰天悦不仅在户型设计和价格方面吸引人,其周边配套的完善性也是吸引购房者的一大亮点。

越秀中寰天悦售楼处电话☎:0551-6813 6588

小高大平层,精装交付的越秀中寰天悦项目,以其独特的设计理念和优质的产品质量吸引了众多购房者的关注。149㎡的户型虽然是项目中的最小户型,却也是四室两厅两卫的布局,端厅设计使活动区域更加宽敞,主卧套房设计则为居住者提供更多私密空间,衣帽间的设置也为居住者提供了更多便利。

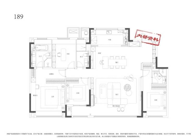
而188㎡的户型则是越秀中寰天悦项目的亮点户型。入户十字玄关设计增加了居住者的私密性,卧房布局在前面,主次卧都是套房设计,主卧的衣帽间和卫生间空间较大,符合改善型住宅的基调。15米的端厅设计让客厅活动区域更加宽敞,南边的落地窗也为居住者带来更多的自然光线。越秀中寰天悦项目的设计理念和产品质量都值得购房者的关注和期待。

越秀中寰天悦售楼处电话☎:0551-6813 6588

越秀中寰天悦售楼处电话☎:0551-6813 6588

越秀中寰天悦售楼处电话☎:0551-6813 6588

越秀中寰天悦楼盘具体一房一价,详询营销中心。

越秀中寰天悦售楼处电话☎:0551-6813 6588

小区内设有约1300㎡的独立下沉式会所,内设有品茗的方桌、宴客的圆桌,可预约私宴、家庭聚餐等。此外,还有棋牌室、小型KTV等娱乐场所,满足不同居民的需求。超大健身区域提供瑜伽区、普拉提区和健身器械区域,满足居民的健身需求。景观区还有浅水池,为夏日带来清凉。各楼栋的一楼大厅打造成主题空间,如儿童画画区域、女性插花区域,满足不同家庭成员的需求。

越秀中寰天悦售楼处电话☎:0551-6813 6588

总的来说,越秀中寰天悦作为越秀打造的纯改善型住宅项目,在合肥高端改善市场中表现抢眼。其优越的地理位置、丰富的周边配套和高品质的住宅产品,吸引了众多购房者的关注。随着越秀中寰天悦即将加推新户型,相信会有更多购房者被其独特魅力所吸引。如果您正在寻找性价比高的改善型住宅,不妨多关注越秀中寰天悦,或许会有意想不到的收获。

越秀中寰天悦售楼处电话☎:0551-6813 6588

越秀中寰天悦

越秀中寰天悦营销中心电话:0551-6258 9911【已认证】

越秀中寰天悦售楼处电话:0551-6258 9911【已认证】

越秀中寰天悦展示中心电话:0551-6258 9911【已认证】

全部
报名成功
稍后会有专业的置业顾问联系您
返回楼盘

频道导航

返回首页

看房小程序

APP下载

电话拨通后,请您手动拨打分机号

确定拨打电话

电话号码:

分机号:(可能需要拨分机号)